
Popp Immobilien GmbH & Co. KG
Herr Stephan Sachsenhauser
094 ···
Nr. anzeigenPreise & Kosten
Provision für Käufer
provisionsfrei
Das Haus
Kategorie
Einfamilienhaus
Baujahr
2026
Energie & Heizung
Warum sehe ich diese Anzeige? – Du siehst diese Anzeige basierend auf Ihrer Navigation auf unserer Website und den Suchkriterien, die du verwendet hast.
Weitere Energiedaten
Heizungsart
Fußbodenheizung, Luft-/Wasser-Wärmepumpe, Zentralheizung
Details
Objektbeschreibung
Das im Landkreis Regensburg gelegene Tegernheim überzeugt durch seinen idealen Wohn- und Freizeitwert. Neben nahgelegenen Einkaufsmöglichkeiten wie z.B. EDEKA, Rewe und Netto befindet sich der Fahrradweg direkt an der Donau Richtung Regensburg und Richtung Straubing. Ärzte, Kindergärten und eine Grundschule sind in Tegernheim...
Ausstattung
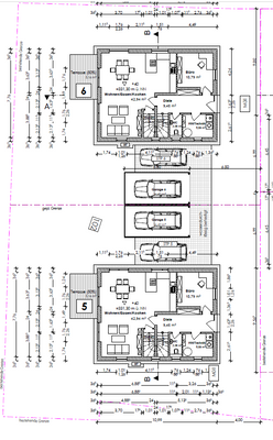
Das Erdgeschoss ist aufgeteilt in ein großes Wohn/Esszimmer mit offener Küche und einer hellen Fensterfront mit Zugang zur Süd-Terrasse in den Garten. Wir haben bei allen Häusern noch einen extra Raum für Homeoffice oder Gäste zum Schlafen geschaffen.
Im Erdgeschoß befindet sich noch der Technik/Hauswirtschaftsraum, ein...
Anbieter der Immobilie
Popp Immobilien GmbH & Co. KG
Hans-Böckler-Str. 7 a, 93142 Maxhütte-Haidhof
Online-ID: 2nfy75w
Finde Angebote wie dieses
Hier geht es zu unserem Impressum, den Allgemeinen Geschäftsbedingungen, den Hinweisen zum Datenschutz und nutzungsbasierter Online-Werbung.