
Italia Immobilien
Frau Nadia Manuela Aron
004 ···
Nr. anzeigenPreise & Kosten
Provision für Käufer
3,66 % inkl. MwSt. inkl. MwSt.
Lage
800 Meter vom Ortszentrum, 15 Minuten von der Autobahn A1 Mailand-Neapel, 10 Minuten vom Bahnhof Chiusi, 30 Minuten von Perugia und 40 Minuten von dessen Flughafen, 90 Minuten vom internationalen Flughafen Rom entfernt.
Das Haus
Kategorie
Bauernhaus
Details
Objektbeschreibung
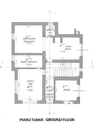
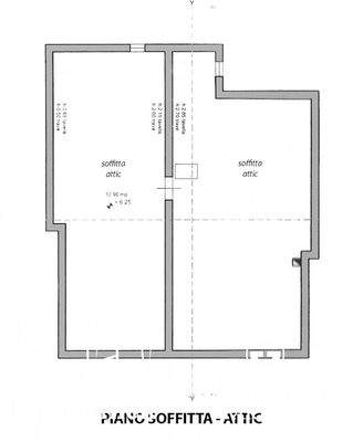
In einem der schönsten Orte Umbriens, nicht weit vom Zentrum entfernt, steht diese schöne Villa auf zwei Ebenen mit einer Fläche von ca. 270 qm und einem komplett eingezäunten Außenbereich mit ca. 1000 qm.
Diese vollständig eingezäunte Villa, die zwischen 1960 und 1970 aufwendig errichtet wurde, ist auf zwei Ebenen...
Weitere Informationen
Stichworte
Gesamtfläche: 274,00 m², Anzahl der Schlafzimmer: 3, Anzahl der Badezimmer: 2
Anbieter der Immobilie
Online-ID: 2nfxc5s
Referenznummer: IT-01788
Finde Angebote wie dieses
Hier geht es zu unserem Impressum, den Allgemeinen Geschäftsbedingungen, den Hinweisen zum Datenschutz und nutzungsbasierter Online-Werbung.