

Engel & Völkers
Herr Lukas Wößner
+49 ···
Nr. anzeigenPreise & Kosten
Provision für Käufer
Der Maklervertrag mit uns kommt durch die Bestätigung der Inanspruchnahme unserer Maklertätigkeit in Textform zustande. Weitere Informationen siehe Provisionshinweis.
Lage
Wohnen in exklusiver Lage der Bodenseestadt Konstanz! Im direkt am See gelegenen "Musikerviertel" liegt diese Liegenschaft aus dem Jahr 1937, nur wenige Minuten von der Bodensee-Therme, dem Strandbad "Hörnle", dem Yachthafen und der Seepromenade entfernt. Optimaler kann die Kombination zwischen ruhigem Wohnen in idyllischer...
Das Haus
Kategorie
Einfamilienhaus
Geschosse
3 Geschosse
Baujahr
1937
Bezug
Ab sofort
Energie & Heizung
Warum sehe ich diese Anzeige? – Du siehst diese Anzeige basierend auf Ihrer Navigation auf unserer Website und den Suchkriterien, die du verwendet hast.
Energieausweistyp
Bedarfsausweis
Gebäudetyp
Wohngebäude
Baujahr laut Energieausweis
1937
Gültigkeit
seit 03.09.2025
Effizienzklasse
H
Endenergiebedarf
360,10 kWh/(m²·a)
Weitere Energiedaten
Energieträger
Öl
Heizungsart
Zentralheizung
Details
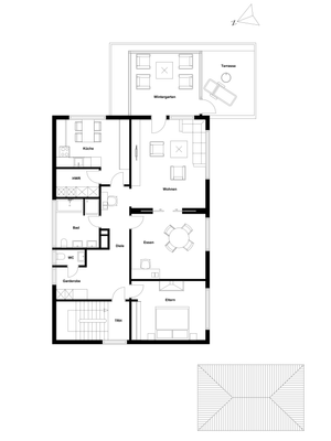
Objektbeschreibung
Die hier angebotene Liegenschaft wurde im Jahr 1937 in massiver Bauweise mit Holzbalkendecken errichtet und 1977 durch einen Anbau erweitert. Das großzügige, parkähnliche Grundstück bietet auf einer Fläche von ca. 1.325 m² viel Raum für individuelle Gestaltungsmöglichkeiten, die Immobilie selbst umfasst eine Gesamtfläche von...
Ausstattung
Einbauschränke, Einbauküche, Abstellkammer, Einbaumöbel, Study
Weitere Informationen
Provisionshinweis
Der Maklervertrag mit uns kommt durch die Bestätigung der Inanspruchnahme unserer Maklertätigkeit in Textform zustande. Die Höhe der Provision richtet sich nach den gesetzlichen Regelungen zur Teilung der Maklerprovision. Hiernach wird die Provision regelmäßig für beide Parteien (Eigentümer und Käufer)...
Anbieter der Immobilie

Online-ID: 2nfwy5t
Referenznummer: I-0477WA-W-0477WA
Finde Angebote wie dieses
Hier geht es zu unserem Impressum, den Allgemeinen Geschäftsbedingungen, den Hinweisen zum Datenschutz und nutzungsbasierter Online-Werbung.