
Müller Merkle Immobilien GmbH
Frau Chantal Rütz
Kontaktiere den Anbieter schriftlich, es ist keine Telefonnummer hinterlegt.
Preise & Kosten
Kaution
2910
Warum sehe ich diese Anzeige? – Du siehst diese Anzeige basierend auf Ihrer Navigation auf unserer Website und den Suchkriterien, die du verwendet hast.
Lage
Der Elb Campus Magdeburg bietet eine Lage, die keine Wünsche offenlässt.
In der Alten Neustadt, nur einen Katzensprung von der Otto-von-Guericke-Universität entfernt, erlebst du das Beste aus beiden Welten: urbanes Leben und grüne Rückzugsorte. Mit dem Nordpark und den Elbwiesen direkt vor der Haustür kannst du nach einem...
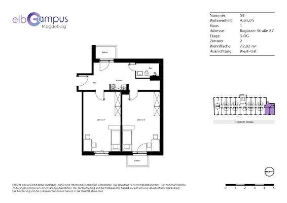
Die Wohnung
Wohnungslage
3. Geschoss
Bezug
ab sofort
Wohnanlage
Energie & Heizung
Warum sehe ich diese Anzeige? – Du siehst diese Anzeige basierend auf Ihrer Navigation auf unserer Website und den Suchkriterien, die du verwendet hast.
Energieausweistyp
Bedarfsausweis
Gebäudetyp
Wohngebäude
Wesentliche Energieträger
Fernwärme
Gültigkeit
23.06.2024 bis 24.06.2034
Effizienzklasse
A
Endenergiebedarf
48,40 kWh/(m²·a)
Weitere Energiedaten
Energieträger
Fernwärme
Details
Objektbeschreibung
Dein neues Zuhause mitten im Herzen von Magdeburg
Willkommen am Elb Campus Magdeburg - einem einzigartigen Wohnkonzept, das moderne Architektur, durchdachte Raumgestaltung und höchsten Komfort miteinander verbindet. In der Rogätzer Straße 87 entstehen 116 hochwertig ausgestattete, vollmöblierte 1- und 2-Raum-Apartments...
Ausstattung
- 116 vollmöblierte Studentenapartments
- Internet- und Telefonanschluss der 1&1 inklusive
- Strom inklusive
- Viele Wohnungen mit Terrasse, Balkon oder Dachterrasse
- Fenster und Balkon/Verandatüren mit 3fach-Verglasung
- PVC-Boden in Holzoptik in den Wohnungen
- Moderne Mini-Einbauküchen
-...
Preisinformation
1 Stellplatz, Miete: 75,00 EUR
Weitere Informationen
Sonstiges
ANFRAGEN BITTE ÜBER DAS KONTAKTFORMULAR
Bei den Bildern handelt es sich um unverbindliche Visualisierungen.
Gerne können Sie sich im Zuge einer Besichtigung vom ELB CAMPUS MAGDEBURG überzeugen.
WEITERE INFOS UNTER https://elbcampus-magdeburg.de/
HAFTUNGSAUSSCHLUSS:
Diese Anzeige dient...
Anbieter der Immobilie
Müller Merkle Immobilien GmbH
Galileistraße 1, 69115 Heidelberg
Frau Chantal Rütz
Dein Ansprechpartner
Kontaktiere den Anbieter schriftlich, es ist keine Telefonnummer hinterlegt.
Online-ID: 2nft35n
Referenznummer: M-EC-WE58#EpnLD
Finde Angebote wie dieses
Hier geht es zu unserem Impressum, den Allgemeinen Geschäftsbedingungen, den Hinweisen zum Datenschutz und nutzungsbasierter Online-Werbung.