
Evernest GmbH
Koray Tuz
+49 ···
Nr. anzeigenPreise & Kosten
Provision für Käufer
3.57 inkl. MwSt.
Bei Abschluss eines notariellen Kaufvertrages ist eine Käuferprovision vom Käufer in Höhe von 3.57 % inkl. MwSt. aus dem Kaufpreis fällig.
Lage
Die Immobilie liegt in einer besonders ruhigen und begehrten Wohngegend von Oberelchingen, die für ihre erhöhte Lage, ihr gepflegtes Umfeld und ihre hohe Wohnqualität bekannt ist. Die Umgebung ist geprägt von überwiegend hochwertiger Wohnbebauung, wenig Verkehr und einer angenehmen, gewachsenen Nachbarschaft - ideale...
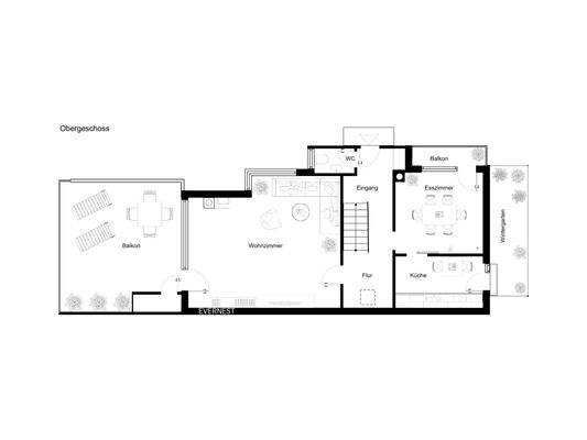
Das Haus
Kategorie
Doppelhaushälfte
Baujahr
1978
Energie & Heizung
Warum sehe ich diese Anzeige? – Du siehst diese Anzeige basierend auf Ihrer Navigation auf unserer Website und den Suchkriterien, die du verwendet hast.
Energieausweistyp
Bedarfsausweis
Gebäudetyp
Wohngebäude
Effizienzklasse
B
Endenergiebedarf
63,60 kWh/(m²·a)
Weitere Energiedaten
Energieträger
Elektro
Details
Objektbeschreibung
In begehrter und angenehm ruhiger Lage von Oberelchingen präsentiert sich diese modernisierte Architekten-Doppelhaushälfte als ideales Zuhause für alle, die Wert auf Qualität, Privatsphäre und eine durchdachte Architektur legen. Der unverbaubare Fernblick verleiht der Immobilie eine besondere Atmosphäre und macht jeden Tag...
Ausstattung
- Massive Bauweise
- Bodenbeläge aus Fliesen und Laminat im Wohnbereich
- Offener Kamin im Wohnzimmer
- Kunststofffenster in Weiß/Anthrazit mit 3-fach-Verglasung
- Elektrische Rollläden
- Fliegengitter an allen zu öffnenden Fenstern und Türen
- Luft-Wasser-Wärmepumpe
-...
Weitere Informationen
Stichworte
Parkhaus vorhanden, Anzahl der Schlafzimmer: 2, Anzahl der Badezimmer: 1, Anzahl der separaten WCs: 1, Anzahl Terrassen: 1, 2 Etagen
Anbieter der Immobilie
Online-ID: 2nfsb5g
Referenznummer: L-KZWT9XA
Finde Angebote wie dieses
Hier geht es zu unserem Impressum, den Allgemeinen Geschäftsbedingungen, den Hinweisen zum Datenschutz und nutzungsbasierter Online-Werbung.