

Bau + Grund Nagel GmbH & Co KG
Frau Maria Droste
054 ···
Nr. anzeigenPreise & Kosten
Provision für Käufer
provisionsfrei
Lage
Gerne errichten wir für Sie auf Ihrem Baugrundstück Ihren Hauswunsch.
Wenn Sie noch auf der Suche sind nach einem geeigneten Grundstück, dann sind wir Ihnen gern behilflich.
Das Haus
Kategorie
Einfamilienhaus
Baujahr
2026
Bezug
Bauzeit ca. 15 Monate
Energie & Heizung
Warum sehe ich diese Anzeige? – Du siehst diese Anzeige basierend auf Ihrer Navigation auf unserer Website und den Suchkriterien, die du verwendet hast.
Energieausweistyp
Bedarfsausweis
Gebäudetyp
Wohngebäude
Gültigkeit
17.12.2034 bis 18.12.2024
Effizienzklasse
A+
Endenergiebedarf
36,00 kWh/(m²·a)
Weitere Energiedaten
Haustyp
Massivhaus
Details
Objektbeschreibung
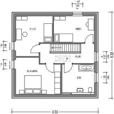
Das Unverbesserliche Einfamilienhaus im Stadtvillenstil V130 - ein Wohntraum auf zwei Etagen, mit ca. 132 m² ist Platz für Klein und Groß, denn der große Wohn- und Essbereich lädt zum Wohnen und Verweilen ein, sowie die im Obergeschoss drei Schlafräume, die genug Platz zum Schlafen und Erholen bieten.
Die...
Ausstattung
Was ist im Angebot enthalten?
Folgende Kosten sind im Angebotspreis bereits berücksichtigt:
- Grundstückskaufpreis ist nicht enthalten!
- Heinz von Heiden Haus B760 in massiver Bauweise (Stein auf Stein)
Folgende Ausstattung ist im Angebotspreis enthalten:
- Bodenplatte aus WU-Beton
-...
Weitere Informationen
Stichworte
Anzahl der Schlafzimmer: 3
Anbieter der Immobilie
Bau + Grund Nagel GmbH & Co KG
Friedrich-Menzefricke-Str. 4, 33775 Versmold

Online-ID: 2nfqr5c
Referenznummer: 600282558#FT6Qe
Finde Angebote wie dieses
Hier geht es zu unserem Impressum, den Allgemeinen Geschäftsbedingungen, den Hinweisen zum Datenschutz und nutzungsbasierter Online-Werbung.