

Störmer Immobilien
Herr/Frau Andreas Störmer
036 ···
Nr. anzeigenPreise & Kosten
Provision für Käufer
3,57% inkl. gesetzl. MwSt
Lage
Garitz ist ein beliebter und lebendiger Stadtteil von Bad Kissingen, der direkt südwestlich an die Kernstadt angrenzt und mit rund 4.600 Einwohnern einer der größten Ortsteile ist. Der Stadtteil zeichnet sich durch eine überwiegend wohnlich geprägte Struktur mit Einfamilienhäusern, Reihenhausgebieten und einer attraktiven...
Das Renditeobjekt
Kategorie
Mehrfamilienhaus
Baujahr
1937
Energie & Heizung
Warum sehe ich diese Anzeige? – Du siehst diese Anzeige basierend auf Ihrer Navigation auf unserer Website und den Suchkriterien, die du verwendet hast.
Weitere Energiedaten
Energieträger
Gas
Heizungsart
Zentralheizung
Details
Objektbeschreibung
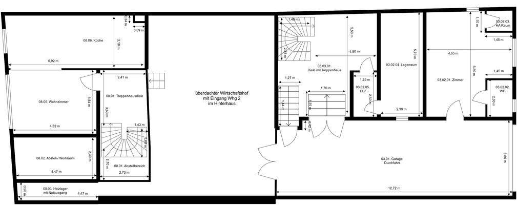
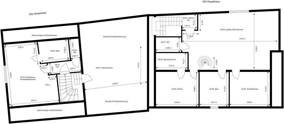
- 2 komplette, separate Wohnungen im Haupt- und Hinterhaus je über 2 Etagen
- als Anlageobjekt oder zum Selbstbezug
- verbunden durch große Doppelgarage
- kleine Terrasse an Wohnung im Haupthaus
- große Dachterrasse an Wohnung im Hinterhaus
- zusätzlich 2 Außenstellplätze
- großer überdachter Hof zwischen...
Ausstattung
Bei der Immobilie handelt es sich um ein Zweifamilienhaus, bestehend aus einem Haupthaus (4 Etagen) sowie einer zu Wohnzwecken umgebauten Scheune als Hinterhaus (3 Etagen). Beide Gebäudeteile sind über eine große Garage sowie einen überdachten Wirtschaftshof miteinander verbunden.
Das Objekt kann sowohl als Anlageobjekt...
Weitere Informationen
Sonstiges
Insgesamt verbindet dieses attraktive 2-Familienhaus in Garitz ruhiges, familientaugliches Wohnen mit der Nähe zur Kurstadt – ein attraktiver Ortsteil sowohl für Eigennutzer als auch für Kapitalanleger.
Deshalb zögern Sie nicht und vereinbaren Sie noch heute einen Besichtigungstermin. Machen Sie sich selbst...
Anbieter der Immobilie

Störmer Immobilien
Dorfstr. 20, 98673 Eisfeld OT Hirschendorf

Online-ID: 2nfqn5b
Referenznummer: ASI 1478
Finde Angebote wie dieses
Hier geht es zu unserem Impressum, den Allgemeinen Geschäftsbedingungen, den Hinweisen zum Datenschutz und nutzungsbasierter Online-Werbung.