

SC Immobilien GmbH
Frau Ceylan Cete
041 ···
Nr. anzeigenPreise & Kosten
Provision für Käufer
provisionsfrei
Lage
Das geplante Wohnhaus befindet sich mittig zwischen dem Hauptbahnhof Neumünster und der Innenstadt Neumünster. Jeweils 150 m vom Hauptbahnhof NMS und 150 m von der Innenstadt.
Die Immobilie
Zu diesem Angebot wurden vom Anbieter keine weiteren Daten hinterlegt. Für weitere Informationen bitte den Anbieter kontaktieren.
Nach Informationen fragenDetails
Objektbeschreibung
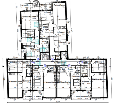
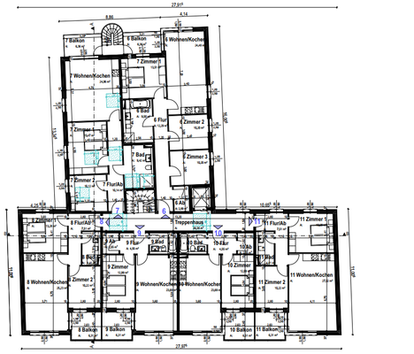
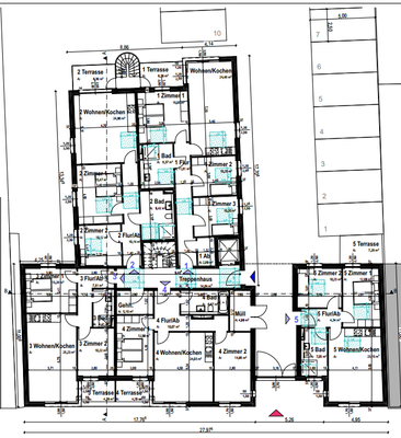
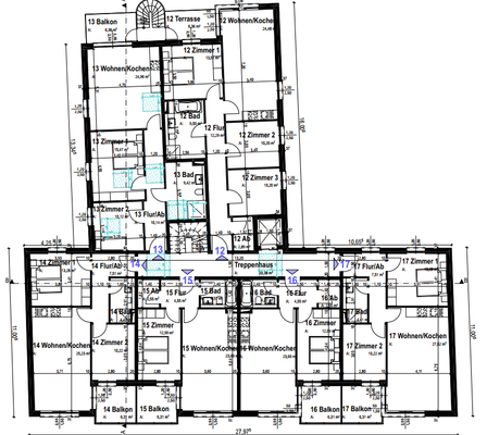
Das Wohnhaus Neubauprojekt umfasst 23 Wohneinheiten, jeweils 2-4 Zimmerwohnungen.
Auf dem 1.020,00 m² großen Grundstück, es ist vollständig Projektiert und Baugenehmigt und bereit zum Umsetzen.
- 23 Zimmerwohnungen und ca. 1.493 m² Wohnfläche
- 1 Treppenhaus
- 1 Aufzug
- 15 Außenstellplätze für PKW
-...
Anbieter der Immobilie
SC Immobilien GmbH
Hamburger Str. 17, 24568 Kaltenkirchen

Online-ID: 2nfqf5f
Finde Angebote wie dieses
Hier geht es zu unserem Impressum, den Allgemeinen Geschäftsbedingungen, den Hinweisen zum Datenschutz und nutzungsbasierter Online-Werbung.