
ohne-makler.net - Immobilien selbst vermarkten
Privat vom Eigentümer
Kontaktiere den Anbieter schriftlich, es ist keine Telefonnummer hinterlegt.
Preise & Kosten
Provision für Käufer
provisionsfrei
Lage
. Ruhiges, angenehmes Wohnumfeld
. Ca. 2,9 km zum Bahnhof Balingen
. Gute Infrastruktur und Anbindung
Infrastruktur (im Umkreis von 5 km):
Apotheke, Lebensmittel-Discount, Allgemeinmediziner, Kindergarten, Grundschule, Hauptschule, Realschule, Gymnasium, Gesamtschule, Öffentliche Verkehrsmittel
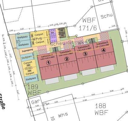
Das Grundstück
Details
Objektbeschreibung
Grundstück mit 4 genehmigten Reihenhäusern zu verkaufen.
Zum Verkauf steht ein attraktives Baugrundstück mit vollständig erteilter Baugenehmigung für die Errichtung von 4 modernen Reihenhäusern in familienfreundlicher Lage von 72336 Balingen Ostdorf.
Projekt-Eckdaten
. 4 genehmigte Reihenhäuser
...
Weitere Informationen
Sonstiges
Baugesuch und Baugenehmigung auf Anfrage - im Kaufpreis inkludiert.
Verkauf erfolgt provisionsfrei direkt vom Eigentümer.
ohne-makler (OM) ist weder Anbieter noch Vermittler der Immobilie. OM betreibt eine Plattform für Immobilieneigentümer, die unter anderem die gleichzeitige...
Anbieter der Immobilie
ohne-makler.net - Immobilien selbst vermarkten
Humboldtstr. 25 A, 21509 Glinde
Privat vom Eigentümer
Dein Ansprechpartner
Kontaktiere den Anbieter schriftlich, es ist keine Telefonnummer hinterlegt.
Online-ID: 2nfpl5y
Referenznummer: 407090
Finde Angebote wie dieses
Hier geht es zu unserem Impressum, den Allgemeinen Geschäftsbedingungen, den Hinweisen zum Datenschutz und nutzungsbasierter Online-Werbung.