

iBS Immobilien | Bewertung | Semrau
Herr Frank Semrau
029 ···
Nr. anzeigenPreise & Kosten
Provision für Käufer
3,57 %
Abschreibung/Anlage
als Kapitalanlage geeignet
Lage
Die Wohnanlage liegt in einem ruhigen Wohngebiet. In ca. 450 m Entfernung befindet sich eine Bushaltestelle mit regelmäßigen Verbindungen in die Innenstadt und zum Marktplatz. Von der zentralen Bushaltestelle haben Sie Anschluss zu anderen Städten in der Umgebung.
Mit dem Auto ist die B55 schnell erreichbar. So...
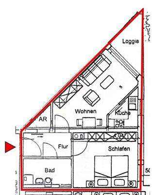
Die Wohnung
Wohnungslage
Erdgeschoss
Bezug
2002
Derzeitige Nutzung
vermietet
Wohnanlage
Energie & Heizung
Warum sehe ich diese Anzeige? – Du siehst diese Anzeige basierend auf Ihrer Navigation auf unserer Website und den Suchkriterien, die du verwendet hast.
Energieausweistyp
Verbrauchsausweis
Gebäudetyp
Wohngebäude
Wesentliche Energieträger
Gas
Gültigkeit
08.02.2019 bis 07.02.2029
Effizienzklasse
C
Endenergieverbrauch
93,30 kWh/(m²·a)
Weitere Energiedaten
Energieträger
Gas
Heizungsart
Zentralheizung
Details
Objektbeschreibung
Objektbeschreibung
Es handelt sich um eine seniorengerechte Wohnanlage mit barrierefreier Umgebung. Sämtliche Geschosse sind über einen Aufzug erreichbar. Dieses ermöglicht Ihnen, bis ins hohe Alter selbständig zu wohnen.
Das Apartment verfügt über einen ebenerdigen Eingang. Vor Ort ist ein Hausmeister tätig, der...
Weitere Informationen
Weitere Informationen
Wir bitten um Ihr Verständnis, dass wir Kontaktanfragen von Neukunden nur mit vollständiger Angabe des Namens, der Anschrift und der Telefonnummer bearbeiten.
Telefonisch Auskünfte zu den Objekten erteilen wir nicht.
Stichworte
Sonstiges/Wohnen: seniorengerechtes Wohnen
Versorgung...
Anbieter der Immobilie
iBS Immobilien | Bewertung | Semrau
Reichenbacher Str. 9, 59557 Lippstadt

Online-ID: 2nfkt5g
Referenznummer: 59581-08-19
Finde Angebote wie dieses
Hier geht es zu unserem Impressum, den Allgemeinen Geschäftsbedingungen, den Hinweisen zum Datenschutz und nutzungsbasierter Online-Werbung.