

FRAU SCHRÖDL. Immobilien & Beratungen
Frau Andrea Schrödl
004 ···
Nr. anzeigenPreise & Kosten
Provision für Käufer
3,57% Käuferprovision vom notariell beurkundeten Kaufpreis
Lage
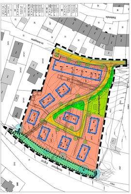
Das reizvolle Grundstück befindet sich in der idyllischen Gemeinde Tengen, eingebettet in die malerische Landschaft des Hegaus in Deutschland. Diese Wohnlage bietet eine perfekte Kombination aus ruhiger Naturnähe und guter Anbindung an die Annehmlichkeiten des täglichen Lebens. Die Region rund um Tengen ist bekannt für ihre...
Das Grundstück
Details
Objektbeschreibung
Traumgrundstück für Ihr Mehrfamilienhaus - Bauplatz H9 in Tengen
Im attraktiven Neubaugebiet "Im Amtsgarten" in Tengen werden exklusiv acht Bauplätze für Einzel- oder Doppelhäuser sowie ein Grundstück für ein Mehrfamilienhaus angeboten. Einer dieser Bauplätze könnte schon bald Ihr neues Zuhause werden - das Grundstück...
Ausstattung
Ihre Vorteile auf einen Blick:
- Ruhige Lage in naturnaher Umgebung
- Flexible Planung durch großzügige Bebaubarkeit
- Energieeffiziente Zukunft durch Fernwärme und Glasfaseranschluss
- Familienfreundliches Umfeld mit hoher Lebensqualität
FAMILIEN mit KINDERN wird beim Kauf des Grundstückes eine...
Weitere Informationen
Sonstiges
Wesentlicher Energieträger der Heizung ist Fernwärme.
Abweichungen, Irrtümer und Änderungen sind vorbehalten. Alle Angaben ohne Gewähr! Eine Haftung ist ausgeschlossen. Obige Daten beruhen auf Angaben des Verkäufers, für die Richtigkeit bzw. für die Vollständigkeit wird keine Gewähr übernommen. Beim Erwerb...
Anbieter der Immobilie

Online-ID: 2nfkc5b
Referenznummer: 26-1259 H9
Finde Angebote wie dieses
Hier geht es zu unserem Impressum, den Allgemeinen Geschäftsbedingungen, den Hinweisen zum Datenschutz und nutzungsbasierter Online-Werbung.