
ohne-makler.net - Immobilien selbst vermarkten
Privat von Thilo Reimers
Kontaktiere den Anbieter schriftlich, es ist keine Telefonnummer hinterlegt.
Preise & Kosten
Provision für Käufer
provisionsfrei
Lage
Das Haus befindet sich zentral im alten Ortskern von Egmating in einer Sackgasse mit insgesamt 5 Einfamilienhäusern.
Im Umkreis von 400 Metern befinden sich:
- Kindergarten
- Grundschule mit Hort
- Kirche
- Einkaufsmöglichkeiten
- Post
- Sporthalle
- Sportplatz
- Golfplatz
- Gastronomie
-...
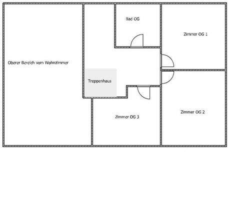
Das Haus
Kategorie
Einfamilienhaus
Baujahr
1974
Bezug
sofort
Energie & Heizung
Warum sehe ich diese Anzeige? – Du siehst diese Anzeige basierend auf Ihrer Navigation auf unserer Website und den Suchkriterien, die du verwendet hast.
Energieausweistyp
Bedarfsausweis
Gebäudetyp
Wohngebäude
Effizienzklasse
G
Endenergiebedarf
249,00 kWh/(m²·a)
Weitere Energiedaten
Energieträger
Pellets
Heizungsart
offener Kamin, Zentralheizung
Details
Objektbeschreibung
Das Einfamilienhaus im alten Ortskern von Egmating ist ideal für Familien, die Wert auf großzügiges Wohnen, einen schönen Garten und eine zentrale, familienfreundliche Lage legen. Es bietet überdurchschnittlich viel Platz und Komfort und war über 20 Jahre das Zuhause einer 5-köpfigen Familie.
Das Haus besticht durch einen...
Ausstattung
Balkon, Terrasse, Garten, Keller, Vollbad, Duschbad, Einbauküche, Kamin, Laminat, Fliesen, Sonstiges (s. Text)
Bemerkungen:
Marmorboden mit Fußbodenheizung im Eingangs-, Wohn- und Essbereich.
Wohnzimmer mit einer Raumhöhe von über 6 Meter mit großen Fenstern sowohl im unteren als auch im oberen...
Preisinformation
4 Stellplätze
1 Garagenstellplatz
Weitere Informationen
Sonstiges
Heizungsart: Zentralheizung
Energieträger: Holzpellets
Makleranfragen nicht erwünscht. Nach § 7 UWG sind unaufgeforderte Kontaktaufnahmen durch Makler ohne ausdrückliche Einwilligung des Empfängers verboten!
ohne-makler (OM) ist weder Anbieter noch Vermittler der Immobilie. OM betreibt eine...
Anbieter der Immobilie
ohne-makler.net - Immobilien selbst vermarkten
Humboldtstr. 25 A, 21509 Glinde
Privat von Thilo Reimers
Dein Ansprechpartner
Kontaktiere den Anbieter schriftlich, es ist keine Telefonnummer hinterlegt.
Online-ID: 2nfk75m
Referenznummer: 364335
Finde Angebote wie dieses
Hier geht es zu unserem Impressum, den Allgemeinen Geschäftsbedingungen, den Hinweisen zum Datenschutz und nutzungsbasierter Online-Werbung.