
Stanglmaier Immobilien GmbH
Herr Ludwig Pazurek
081 ···
Nr. anzeigenPreise & Kosten
Provision für Käufer
2,38 % inkl. MwSt.
Lage
Die Gemeinde Langenbach liegt mittig zwischen der Kreisstadt Freising und der Stadt Moosburg an der Isar. Sämtliche Dinge des täglichen Bedarfs sind fußläufig in wenigen Minuten erreichbar. Langenbach verfügt über eine ausgezeichnete Verkehrsinfrastruktur. Der Bahnanschluss gehört zum MVV-Gebiet.
Die BAB 92 ist schnell zu...
Das Haus
Kategorie
Reihenendhaus
Baujahr
2026
Bezug
2027
Energie & Heizung
Warum sehe ich diese Anzeige? – Du siehst diese Anzeige basierend auf Ihrer Navigation auf unserer Website und den Suchkriterien, die du verwendet hast.
Weitere Energiedaten
Heizungsart
Luft-/Wasser-Wärmepumpe, Zentralheizung
Details
Objektbeschreibung
Das von uns exklusiv angebotene Neubau-Reiheneckhaus befindet sich im Ortskern von Langenbach.
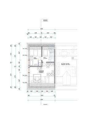
Empfangen werden Sie von einem geräumigen Flur, welcher alle Räume des Erdgeschosses erschließt. So finden Sie zu Ihrer rechten Seite die geräumige Garderobe mit ausreichend Platz für einen Einbauschrank. Angrenzend daran...
Ausstattung
Das Haus wird vollunterkellert gebaut. Die Außenwände werden in 36,5 cm Ziegelsteinen gemauert. Als Heizung wird eine Luft-/ Wärmepumpe mit Solarunterstützung verbaut werden. Der Energiewert des Hauses wird sich vermutlich zwischen 30 und 50 Kw/h einfinden.
Änderungen am Plan und der Baubeschreibung sind selbstverständlich...
Preisinformation
2 Stellplätze
Weitere Informationen
Sonstiges
Im Kaufpreis enthalten sind zwei Stellplätze direkt am Haus mit den Nummern Nummern 7 und 8.
Der Baubeginn des Reihenhauses ist kurzfristig, die Fertigstellung ist für 2027 geplant.
Stichworte
Stellplatz vorhanden, Nutzfläche: 46,71 m², Anzahl der Schlafzimmer: 3, Anzahl der Badezimmer: 2, Anzahl...
Anbieter der Immobilie
Stanglmaier Immobilien GmbH
Am Wörth 10, 85354 Freising

Online-ID: 2nfk25p
Referenznummer: RO515
Finde Angebote wie dieses
Hier geht es zu unserem Impressum, den Allgemeinen Geschäftsbedingungen, den Hinweisen zum Datenschutz und nutzungsbasierter Online-Werbung.