

Norbert Schaller Immobilien
Herr Norbert Schaller
091 ···
Nr. anzeigenPreise & Kosten
Provision für Käufer
3,57 % (inkl. Umsatzsteuer), berechnet vom beurkundeten Kaufpreis
Lage
Das Objekt befindet sich im südlich gelegenen Stadtteil Bauernfeind, welcher durch die fußläufige erreichbare U-Bahn-Station optimal mit dem Zentrum verbunden ist. Eine schnelle Autobahnanbindung ist über die Münchner Straße gewährleistet. Das ebenfalls fußläufig erreichbare Naherholungsgebiet Dutzendteich ist ein Paradies...
Die Wohnung
Wohnungslage
2. Geschoss
Bezug
* Frei
Derzeitige Nutzung
frei
Wohnanlage
Energie & Heizung
Warum sehe ich diese Anzeige? – Du siehst diese Anzeige basierend auf Ihrer Navigation auf unserer Website und den Suchkriterien, die du verwendet hast.
Weitere Energiedaten
Energieträger
Fernwärme
Details
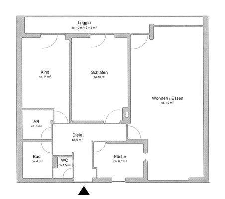
Objektbeschreibung
* Helle, lichtdurchflutete Wohnung
* 2005 wurden neue Kunststoffisolierglasfenster eingebaut
* 2012 neue Heizkörper
* 2015 neue Haustüre
* Geräumige Diele mit Platz für die Garderobe
* Ca. 40 m² großes Wohn-Ess-Zimmer mit Zugang zum Balkon
* Küche mit praktischer Durchreiche zum Essbereich
* Moderne...
Weitere Informationen
Etage
* 2. OG ohne Aufzug
Wohngeld
* Ca. EUR 440,- monatlich (inkl. Heiz.)
Grundsteuer
* Ca. EUR 64,- vierteljährlich
Stellplatz
* Garage zuzüglich EUR 23.500,-
Hinweis
Für unsere Nachweis-/Vermittlungstätigkeit ist vom Käufer bei Abschluss eines wirksamen Kaufvertrages eine...
Anbieter der Immobilie

Online-ID: 2nfjk5y
Referenznummer: A3408
Finde Angebote wie dieses
Hier geht es zu unserem Impressum, den Allgemeinen Geschäftsbedingungen, den Hinweisen zum Datenschutz und nutzungsbasierter Online-Werbung.