
Finest Properties Köln GmbH
Frau Louisa Przygodda
+49 ···
Nr. anzeigenPreise & Kosten
Provision für Käufer
3,57% inkl. MwSt
Lage
Die Immobilie befindet sich in Köln-Ensen, einem gewachsenen und ruhigen Wohnviertel im rechtsrheinischen Süden von Köln. Ensen bietet eine hervorragende Mischung aus urbaner Nähe und naturnahem Wohnen. Der Rhein ist fußläufig erreichbar und lädt zu Spaziergängen, Jogging oder Fahrradtouren ein.
Alle Einrichtungen des...
Das Haus
Kategorie
Mehrfamilienhaus
Baujahr
2022
Bezug
Sofort
Energie & Heizung
Warum sehe ich diese Anzeige? – Du siehst diese Anzeige basierend auf Ihrer Navigation auf unserer Website und den Suchkriterien, die du verwendet hast.
Energieausweistyp
Bedarfsausweis
Gebäudetyp
Wohngebäude
Wesentliche Energieträger
Strom
Gültigkeit
18.06.2024 bis 17.06.2034
Endenergiebedarf
19,10 kWh/(m²·a)
Weitere Energiedaten
Energieträger
Elektro
Heizungsart
Fußbodenheizung
Details
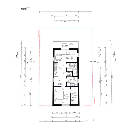
Objektbeschreibung
Dieses Zweifamilienhaus im gefragten Kölner Stadtteil Ensen vereint Individualität, Großzügigkeit und moderne Architektur in einem durchdachten Gesamtkonzept. Das 2022 als Lückenbebauung errichtete und 2025 fertiggestellte Objekt erfüllt den KfW-55-Effizienzhaus-Standard (Energieeffizienzklasse A+) und bietet mit zwei...
Ausstattung
Erdgeschoss-Maisonettewohnung:
. Maisonettewohnung als veredelter Rohbau über drei Ebenen (EG, OG, KG) in einem Zweifamilienhaus (Lückenbebauung)
. Massivbauweise mit Kellergeschoss als KfW 55 Effizienzhaus, Energieeffizienz- Klasse A+
. Baujahr 2022, Fertigstellung 2025
. Ca. 168m² Wohnfläche inkl...
Preisinformation
2 Garagenstellplätze
Weitere Informationen
Sonstiges
Die Immobilie mit der Erdgeschoss-Maisonette- und Dachgeschosswohnung im Zweifamilienhaus wird im Rahmen eines digitalen Angebotsverfahrens verkauft: Nachdem Sie die Immobilie besichtigt haben, werden Ihnen relevante Informationen in einem Datenraum zur Verfügung gestellt. Inhaltliche und sonstige Fragen...
Anbieter der Immobilie
Finest Properties Köln GmbH
Alte Wallgasse 31, 50672 Köln
Online-ID: 2nfgu5k
Referenznummer: KKOE_826
Finde Angebote wie dieses
Hier geht es zu unserem Impressum, den Allgemeinen Geschäftsbedingungen, den Hinweisen zum Datenschutz und nutzungsbasierter Online-Werbung.