Schönteich Hausverwaltung

Gesa Schönteich

TOP 4 Zimmer-Wohnung in ruhiger Wohnlage

€ 920
Kaltmiete zzgl. NK
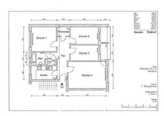
80 m²
Wohnfläche ca.
4
Zimmer

Der Anbieter dieses Objekts hat gegenüber der AVIV Germany GmbH als Betreiber dieses Online-Marktplatzes erklärt, nicht als Unternehmer im Sinne des § 1 KSchG zu handeln. Die im Verbraucherschutzrecht der Union verankerten Verbraucherrechte (insbesondere Informationspflichten und Rücktritts- bzw. Widerrufsrechte) finden auf den Vertrag zwischen dem Anbieter des Objekts und Ihnen (dem Interessenten) keine Anwendung.

Gewerblicher Anbieter

Der Anbieter dieses Objekts hat gegenüber der AVIV Germany GmbH als Betreiber dieses Online-Marktplatzes erklärt, als Unternehmer im Sinne des § 1 KSchG zu handeln.

AdresseKolberger Str. 1c
22949 Ammersbek 
(Lottbek)
Auf Karte ansehen

Preise & Kosten

Kaltmiete € 920 Nebenkosten € 170 Heizkosten

nicht in Nebenkosten enthalten

€ 200
Warmmiete € 1.290

Kaution

2760,00

Lage

Die Wohnung

Wohnungslage

2. Geschoss

Bezug

sofort

  • Bad mit Wanne
  • Balkon
  • Einbauküche
  • Böden: Laminat
  • Fenster: Kunststofffenster
  • Weitere Räume: Kelleranteil, Wasch-Trockenraum

Wohnanlage

  • Baujahr: 1966
  • Serviceleistungen: Reinigungsservice

Energie & Heizung

A+
A
B
C
D
E
F
G
H
0 25 50 75 100 125 150 175 200 225 250 +

Energieausweistyp

Verbrauchsausweis

Gebäudetyp

Wohngebäude

Baujahr laut Energieausweis

1966

Gültigkeit

31.08.2018 bis 31.08.2028

Effizienzklasse

D

Endenergieverbrauch

115,00 kWh/(m²·a) - Warmwasser enthalten

Weitere Energiedaten

Energieträger

Fernwärme, Gas

Details

Objektbeschreibung

Diese schöne 4 Zimmer Wohnung liegt direkt im Grünen.
Einkaufsmöglichkeiten des täglichen Bedarfs sowie die U-Bahn Hoisbüttel sind fußläufig zu erreichen.
Die Wohnung befindet sich im 2.OG eines Mehrfamilienhauses mit 6 Wohnungen.
Die Warmwassererwärmung erfolgt mittels Durchlauferhitzer. Die Wohnung wird mit...

Mehr anzeigen

Preisinformation

Erbbaurecht nicht vorhanden

Weitere Informationen

Sonstiges
Die 4-Zimmer Wohnung mit Abstellkammer ist auf einem aktuellen Stand.

Das Badezimmer ist separat vom WC. Die Einbauküche ist mit einem Ceranfeld/Ofen, Arbeitsplatte und Ober- Unterschränken und einem Kühlschrank ausgestattet.

Im Wohnzimmer liegt Stäbchenparkett, die übrigen Zimmer sind mit einem...

Mehr anzeigen

Anbieter der Immobilie

PartnerDiamond Partner

Schönteich Hausverwaltung

im Durchschnitt  4,40  Sterne
(bei 7 Bewertungen)

Twietenkoppel 25A, 22395 Hamburg

user

Gesa Schönteich

Dein Ansprechpartner

Anbieter-Website Anbieter-Profil Anbieter-Impressum

Online-ID: 2nfea5h

Referenznummer: 155

Finde Angebote wie dieses

imageimageimage

Hier geht es zu unserem Impressum, den Allgemeinen Geschäftsbedingungen, den Hinweisen zum Datenschutz und nutzungsbasierter Online-Werbung.