
Irps-Borchers Immobilien
Herr Mathias Irps-Borchers
+49 ···
Nr. anzeigenPreise & Kosten
Provision für Käufer
2,975
Lage
Dieses Einfamilienhaus befindet sich in ruhiger Ortsrandlage von Lenzen, einer kleinen Stadt mit dörflichem Charakter. Die Umgebung ist geprägt von weiten Feldern, Wiesen und Auenlandschaften. Direkt vor der Haustür lädt der Naturpark Lenzener Elbtalaue zu ausgedehnten Spaziergängen, Radtouren und Naturerlebnissen...
Das Haus
Kategorie
Einfamilienhaus
Baujahr
1900
Bezug
nach Vereinbarung
Energie & Heizung
Warum sehe ich diese Anzeige? – Du siehst diese Anzeige basierend auf Ihrer Navigation auf unserer Website und den Suchkriterien, die du verwendet hast.
Energieausweistyp
Bedarfsausweis
Gebäudetyp
Wohngebäude
Wesentliche Energieträger
Gas
Gültigkeit
22.09.2025 bis 21.09.2035
Effizienzklasse
G
Endenergiebedarf
200,76 kWh/(m²·a)
Weitere Energiedaten
Energieträger
Gas
Details
Objektbeschreibung
Dieses gemütliche Einfamilienhaus bietet Ihnen eine einmalige Gelegenheit, naturnah zu wohnen und gleichzeitig alle Vorzüge einer idyllischen Ortsrandlage zu nutzen. Lenzen lädt zu Ruhe und Beschaulichkeit ein. Ein Badesee ist fußläufig erreichbar und der nahegelegene Naturpark Lenzener Elbtalaue mit seiner beeindruckenden...
Ausstattung
Ausstattung & Highlights
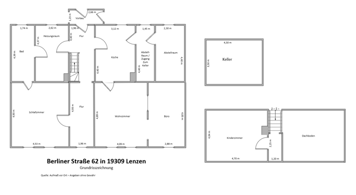
-ca. 136 m² Wohnfläche
-Baujahr um 1900, gepflegter Zustand
-Heizung Bj. 1991
-Dachgeschoss teilweise ausgebaut, zusätzliche Ausbaureserve vorhanden
-Nach der Wende diverse Renovierungs- und Sanierungsarbeiten
-Pflegeleichtes Grundstück - ideal auch für Menschen mit wenig...
Weitere Informationen
Sonstiges
Energieausweis: Bedarfsausweis
Effizienzklasse: G
Energiebedarf: 200,76 kWh/(m²xa)
gültig bis: 21.09.2035
Primärenergieträger: Gas
Baujahr Heizung: 1991
Kaufpreis & Konditionen
128.000,00 € VHB zzgl. Kaufnebenkosten.
Bei mehreren Interessenten wird das Haus an den Höchstbietenden...
Anbieter der Immobilie
Online-ID: 2nfdf5d
Referenznummer: 293#5U4cf
Finde Angebote wie dieses
Hier geht es zu unserem Impressum, den Allgemeinen Geschäftsbedingungen, den Hinweisen zum Datenschutz und nutzungsbasierter Online-Werbung.