
STEINFEGER IMMOBILIEN
060 ···
Nr. anzeigenPreise & Kosten
Provision für Käufer
provisionsfrei
Lage
Weckesheim ist ein Ortsteil der Gemeinde Reichelsheim im Wetteraukreis und liegt im östlichen Teil der Wetterau in Mittelhessen. Der Ort befindet sich in einer überwiegend ländlich geprägten Umgebung, eingebettet in weite Acker- und Grünflächen, die der Region ihren charakteristischen offenen Landschaftscharakter...
Das Haus
Kategorie
Doppelhaushälfte
Baujahr
2026
Energie & Heizung
Warum sehe ich diese Anzeige? – Du siehst diese Anzeige basierend auf Ihrer Navigation auf unserer Website und den Suchkriterien, die du verwendet hast.
Energieausweis: für diesen Gebäudetyp nicht notwendig
Weitere Energiedaten
Haustyp
Massivhaus
Details
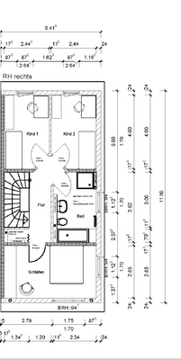
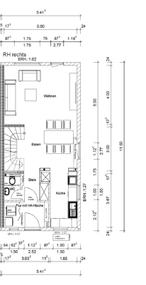
Objektbeschreibung
In ruhiger und begehrter Lage von Reichelsheim entsteht diese traumhafte Doppelhaushälfte als moderner Neubau, welche mit durchdachter Architektur und zeitgemäßem Wohnkomfort überzeugt. Auf ca. 99m² Nettoraumfläche nach DIN 277 bietet das Haus ein großzügiges und lichtdurchflutetes Raumkonzept auf einem ca. 249m² großen...
Ausstattung
- Bei den Bildern handelt es sich um eine Visualisierung
- 2x Stellplatz für 15.000 €
- Massivbauweise in Porenbeton 24 cm Mauerwerk
- Mehrsparten Hausanschluss
- Röhrenspan Innentüren CPL Oberfläche
- Dreifachverglaste Fensterelemente
- Innenfensterbänke Werzalit
- Treppe mit Buche Stufen
- WC und...
Preisinformation
2 Stellplätze, Kaufpreis je: 7.500,00 EUR
Weitere Informationen
Stichworte
Stellplatz vorhanden, Anzahl der Schlafzimmer: 3, Anzahl der Badezimmer: 1, Anzahl der separaten WCs: 1, Anzahl Terrassen: 1, 2 Etagen, Lage im Wohngebiet
Anbieter der Immobilie
Online-ID: 2nfdb5e
Referenznummer: 8472#eaLxYh
Finde Angebote wie dieses
Hier geht es zu unserem Impressum, den Allgemeinen Geschäftsbedingungen, den Hinweisen zum Datenschutz und nutzungsbasierter Online-Werbung.