
massa haus - Markus Heinze
Herr Markus Heinze
+49 ···
Nr. anzeigenPreise & Kosten
Provision für Käufer
provisionsfrei
Das Haus
Details
Objektbeschreibung
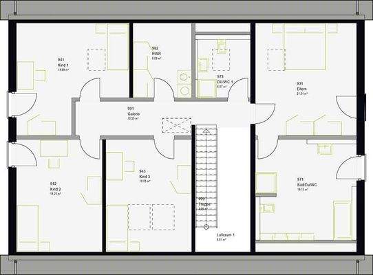
Ein Haus mit mehreren Wohn-Optionen
Das FamilyStyle 26.01 S bietet auf einer Nettogrundfläche von 265 m² viel Raum für unterschiedlichste Wohnideen - vom Mehrgenerationenwohnen bis zur vermieteten Einliegerwohnung als Finanzierungshilfe. Möglich macht dies die Aufteilung des Hauses in eine komplette, separate Wohnung...
Ausstattung
Bauen Sie jetzt - mit dem Marktführer m a s s a h a u s
Sie bekommen BESTE QUALITÄT für einen unschlagbaren GÜNSTIGEN PREIS...das gibts nur bei massa haus
Wir bieten Ihnen Modernste Technik und optimaler Wärmeschutz.
IM ANGEBOT ENTHALTEN:
- Energiesparhaus auf Bodenplatte (Keller optional)
- inkl...
Weitere Informationen
Sonstiges
Das Vertrauen unserer Kunden ist uns wichtig. Unseren Kunden auch! Denn nicht
umsonst bleiben uns unsere Kunden über Jahrzehnte hinweg treu. Dafür möchten wir uns an dieser Stelle herzlich bedanken und versichern, dass all unser Tun dem Ziel dient, unseren Kunden stets nur das Beste zu bieten. Unser stetig an...
Anbieter der Immobilie
massa haus - Markus Heinze
Beroldingerstraße 6, 78078 Niedereschach
Online-ID: 2nfd65l
Referenznummer: 100003001
Finde Angebote wie dieses
Hier geht es zu unserem Impressum, den Allgemeinen Geschäftsbedingungen, den Hinweisen zum Datenschutz und nutzungsbasierter Online-Werbung.