
Amy Dyla Immobilien
Frau Amy Dyla
004 ···
Nr. anzeigenPreise & Kosten
Kaution
1.260,00
Warum sehe ich diese Anzeige? – Du siehst diese Anzeige basierend auf Ihrer Navigation auf unserer Website und den Suchkriterien, die du verwendet hast.
Lage
Dieses neu errichtete Mehrfamilienhaus befindet sich in einer ruhigen Seitenstraße der idyllischen Bad Lauterberger Aue - ein Ort, der Ruhe und gute Anbindung auf ideale Weise vereint.
Die Umgebung überzeugt durch eine hervorragende Infrastruktur: In unmittelbarer Nähe befinden sich die Kooperative Gesamtschule, eine...
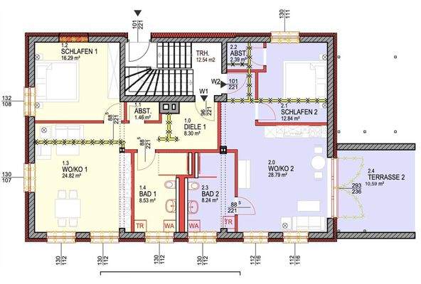
Die Wohnung
Wohnungslage
Erdgeschoss
Bezug
sofort
Wohnanlage
Energie & Heizung
Warum sehe ich diese Anzeige? – Du siehst diese Anzeige basierend auf Ihrer Navigation auf unserer Website und den Suchkriterien, die du verwendet hast.
Weitere Energiedaten
Haustyp
KfW 55
Heizungsart
Fußbodenheizung, Luft-/Wasser-Wärmepumpe
Details
Objektbeschreibung
Dieses beeindruckende Objekt wurde kürzlich umfassend und mit viel Liebe zum Detail saniert, nach aktuellen energetischen Standards und mit hochwertigen Materialien. Es präsentiert sich heute in einem Zustand, der einem Neubau in nichts nachsteht.
Das Haus ist mit modernster Haustechnik ausgestattet:
Eine effiziente...
Ausstattung
Diese lichtdurchflutete Wohnung im Souterrain überzeugt durch ihre moderne Ausstattung, ein durchdachtes Raumkonzept und eine wohnliche Atmosphäre. Hochwertige Materialien und zeitgemäßer Komfort machen dieses Zuhause besonders attraktiv.
Ein durchgängiger Eichenoptik-Vinylboden schafft in Kombination mit der...
Preisinformation
1 Garagenstellplatz, Miete: 50,00 EUR
Weitere Informationen
Stichworte
Nutzfläche: 6,00 m², Anzahl der Schlafzimmer: 1, Anzahl der Badezimmer: 1, Anzahl Terrassen: 1, 3 Etagen
Anbieter der Immobilie
Amy Dyla Immobilien
Bahnhofstraße 25, 37520 Osterode am Harz
Online-ID: 2nfck5r
Referenznummer: 2026-118
Finde Angebote wie dieses
Weitere Immobilien
Hier geht es zu unserem Impressum, den Allgemeinen Geschäftsbedingungen, den Hinweisen zum Datenschutz und nutzungsbasierter Online-Werbung.