
ohne-makler.net - Immobilien selbst vermarkten
Privat von Arte Immobilien VV2 GmbH
017 ···
Nr. anzeigenPreise & Kosten
Provision für Käufer
provisionsfrei
Lage
Treuchtlingen liegt im Herzen des Altmühltals in Bayern und bietet eine ausgezeichnete Lebensqualität. Die Stadt verbindet eine idyllische Naturlandschaft mit einer guten Infrastruktur. Durch die direkte Anbindung an die B2 und den Bahnhof, ist Treuchtlingen verkehrstechnisch sehr gut erschlossen. Schulen...
Die Immobilie
Zu diesem Angebot wurden vom Anbieter keine weiteren Daten hinterlegt. Für weitere Informationen bitte den Anbieter kontaktieren.
Nach Informationen fragenDetails
Objektbeschreibung
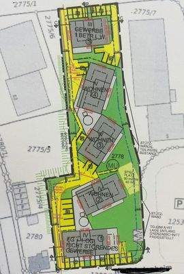
In zentraler Lage von Treuchtlingen bietet sich die Möglichkeit zur Errichtung eines modernen Wohn- und Gewerbeensembles. Das Neubauprojekt besteht aus vier Wohngebäuden mit insgesamt 46 Wohneinheiten auf rund 3.900 m² Wohnfläche sowie einem separaten Gewerbegebäude mit zwei Einheiten auf ca. 450 m² Gewerbefläche.
Das...
Weitere Informationen
Sonstiges
Makleranfragen nicht erwünscht. Nach § 7 UWG sind unaufgeforderte Kontaktaufnahmen durch Makler ohne ausdrückliche Einwilligung des Empfängers verboten!
ohne-makler (OM) ist weder Anbieter noch Vermittler der Immobilie. OM betreibt eine Plattform für Immobilieneigentümer, die unter anderem die...
Anbieter der Immobilie
ohne-makler.net - Immobilien selbst vermarkten
Humboldtstr. 25 A, 21509 Glinde
Online-ID: 2nfc65v
Referenznummer: 378777
Finde Angebote wie dieses
Hier geht es zu unserem Impressum, den Allgemeinen Geschäftsbedingungen, den Hinweisen zum Datenschutz und nutzungsbasierter Online-Werbung.