

Immobilien Kontor Nord
Herr Christian Trems
038 ···
Nr. anzeigenPreise & Kosten
Provision für Käufer
3,57 % inkl. MwSt.
Lage
Die Wohnung befindet sich in der beliebten Rostocker Südstadt, einem gewachsenen und sehr gut angebundenen Wohngebiet mit ausgezeichneter Infrastruktur. Der Stadtteil zeichnet sich durch eine angenehme Mischung aus ruhigem Wohnen, guter Nahversorgung und kurzen Wegen in die Innenstadt aus.
Besonders hervorzuheben ist...
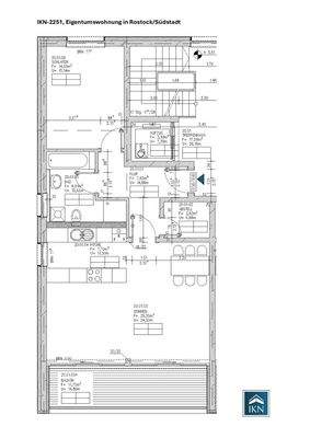
Die Wohnung
Wohnungslage
2. Geschoss
Bezug
sofort
Derzeitige Nutzung
vermietet
Wohnanlage
Energie & Heizung
Warum sehe ich diese Anzeige? – Du siehst diese Anzeige basierend auf Ihrer Navigation auf unserer Website und den Suchkriterien, die du verwendet hast.
Energieausweistyp
Verbrauchsausweis
Gebäudetyp
Wohngebäude
Baujahr laut Energieausweis
2011
Wesentliche Energieträger
FERN
Gültigkeit
bis 07.04.2031
Effizienzklasse
B
Endenergieverbrauch
52,00 kWh/(m²·a)
Weitere Energiedaten
Energieträger
Fernwärme
Details
Objektbeschreibung
Diese attraktive 2-Raum-Eigentumswohnung befindet sich in einem modernen und gepflegten Mehrfamilienhaus aus dem Jahr 2012 in der beliebten Rostocker Südstadt. Auf ca. 75 m² Wohnfläche verbindet die Wohnung zeitgemäßen Wohnkomfort mit einer durchdachten Raumaufteilung und einer hochwertigen Ausstattung.
Bereits beim...
Ausstattung
- ca. 75 m² Wohnfläche
- 2 Zimmer mit durchdachtem Grundriss
- überdachter Süd-West-Balkon
- offene Wohnküche mit Kochinsel und Einbauküche (NEFF)
- Fußbodenheizung in allen Räumen
- hochwertiges Laminat in Wohn- und Schlafzimmer
- moderne Fliesen in Flur, Küche und Bad
- geräumiges, separates...
Weitere Informationen
Sonstiges
Haftungsausschluss: Die hier gemachten Angaben zur Immobilie beziehen sich größtenteils auf Angaben des Eigentümers, die Firma Immobilien Kontor Nord übernimmt für die Richtigkeit der Angaben keine Haftung. Alle Angaben sind durch den Interessenten/ Käufer selbst zu prüfen. Bei den Maßangaben der Wohn- und...
Anbieter der Immobilie

Online-ID: 2nfbk5x
Referenznummer: IKN-2251
Finde Angebote wie dieses
Hier geht es zu unserem Impressum, den Allgemeinen Geschäftsbedingungen, den Hinweisen zum Datenschutz und nutzungsbasierter Online-Werbung.