

CvS Capital / Christian von Sturmfeder
Herr Martin Schröder
040 ···
Nr. anzeigenPreise & Kosten
Provision für Käufer
2,98 inkl. MwSt.
Lage
Die Immobilie liegt in einer der gefragtesten Wohnlagen von Grömitz, nur wenige Minuten vom feinsandigen Ostseestrand und der lebhaften Promenade entfernt. Das Ostseebad an der Lübecker Bucht zählt zu den beliebtesten Ferienorten Schleswig-Holsteins - bekannt für sein maritimes Flair, die lange Seebrücke, charmante Cafés und...
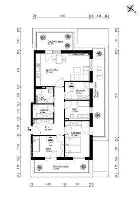
Die Wohnung
Wohnungslage
3. Geschoss
Wohnanlage
Energie & Heizung
Warum sehe ich diese Anzeige? – Du siehst diese Anzeige basierend auf Ihrer Navigation auf unserer Website und den Suchkriterien, die du verwendet hast.
Energieausweistyp
Bedarfsausweis
Gebäudetyp
Wohngebäude
Wesentliche Energieträger
Strom
Effizienzklasse
A
Endenergiebedarf
35,61 kWh/(m²·a)
Weitere Energiedaten
Energieträger
Elektro
Details
Objektbeschreibung
Wohnen, wo andere Urlaub machen - Neubauprojekt in Grömitz
An der sonnenverwöhnten Lübecker Bucht entsteht ein exklusives Neubauensemble mit 13 modernen Wohnungen, das maritimen Charme mit zeitgemäßem Wohnkomfort verbindet.
Der energieeffizienten KfW 55 Standard wird aktuell wieder durch mit zinsgünstigen Darlehen...
Ausstattung
- KfW 55
- Massivbauweise
- Luft- Wärmepumpe
- Fussbodenheizung
- Parkettböden
- Bodentiefe Fenster & Außenrollläden
- Balkone oder Terrassen
- Handtuchheizkörper
- Personenaufzug
- barrierearm bzw. teilweise barrierefrei
- Abstellraum mit Waschmaschinenanschluss
- Kellerraum und...
Preisinformation
1 Garagenstellplatz, Kaufpreis: 28.500,00 EUR
Weitere Informationen
Stichworte
Tiefgarage vorhanden, Anzahl der Schlafzimmer: 1, Anzahl der Badezimmer: 1, Anzahl Balkone: 1, Anzahl Terrassen: 1, Kellerfläche: 3,00 m², 3 Etagen, Lage im Wohngebiet
Dokumente
Anbieter der Immobilie
CvS Capital / Christian von Sturmfeder
Borsteler Chaussee 47, 22453 Hamburg

Online-ID: 2nf9p5h
Referenznummer: 119752213#qrFLp
Finde Angebote wie dieses
Hier geht es zu unserem Impressum, den Allgemeinen Geschäftsbedingungen, den Hinweisen zum Datenschutz und nutzungsbasierter Online-Werbung.