

Safe Select Immobilien und Baufinanzierung
Herr Arwid Walker
+49 ···
Nr. anzeigenPreise & Kosten
Provision für Käufer
provisionsfrei
Lage
Dieses Einfamilienhaus befindet sich in Pegeia, Zypern, in einer ruhigen und gepflegten Wohngegend, die durch ihre angenehme Nachbarschaft und die Nähe zur Küste überzeugt. Die Lage vereint entspanntes Wohnen mit kurzen Wegen zu den wichtigsten Einrichtungen des täglichen Bedarfs.
Das Meer ist in wenigen Minuten...
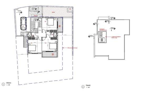
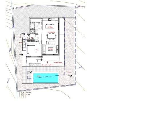
Das Haus
Kategorie
Einfamilienhaus
Baujahr
2027
Energie & Heizung
Warum sehe ich diese Anzeige? – Du siehst diese Anzeige basierend auf Ihrer Navigation auf unserer Website und den Suchkriterien, die du verwendet hast.
Weitere Energiedaten
Energieträger
Elektro
Heizungsart
Fußbodenheizung
Details
Objektbeschreibung
In begehrter Lage von Pegeia entsteht dieses neuwertige Einfamilienhaus (Baujahr 2027) und vereint luxuriöse Ausstattung mit durchdachter Architektur sowie einem außergewöhnlichen Blick auf das Meer. Auf einem ca. 310 m² großen Grundstück bietet die Immobilie ca. 172 m² Wohnfläche und überzeugt mit einem modernen Raumkonzept...
Ausstattung
- Einbauküche
- Offene Küche
- Terrasse
- Carport (1 Stellplatz)
- Fußbodenheizung
- Elektroheizung (optional nach Wunsch)
- Privater Pool
- Außendusche
- Grillbereich / Barbecue
- Energieeffiziente Bauweise (Energieklasse A)
- Hochwertige Ausstattung
- Gesicherte...
Preisinformation
2 Stellplätze
Weitere Informationen
Sonstiges
Optionale Extras (gegen Aufpreis):
- Vorbereitung für Fußbodenheizung - 12.000?€
- Komplett installierte Fußbodenheizung - 19.000?€
- Solarpaket (3?kW) - 5.000?€
- Angelegter Garten / Landschaftsgarten - 6.000?€
- Videoüberwachung (CCTV) - 3.000?€
Sehr geehrte Interessentinnen und...
Anbieter der Immobilie
Safe Select Immobilien und Baufinanzierung
Biberacher Str. 18, 88444 Ummendorf

Online-ID: 2nf8m5u
Referenznummer: 180
Finde Angebote wie dieses
Hier geht es zu unserem Impressum, den Allgemeinen Geschäftsbedingungen, den Hinweisen zum Datenschutz und nutzungsbasierter Online-Werbung.