
Trummer Immobilien GmbH & Co. KG
Herr Roland Trummer
094 ···
Nr. anzeigenPreise & Kosten
Provision für Käufer
Ortsübliche Provision vom Käufer/Mieter nur im Erfolgsfalle
Lage
Bad Abbach
Büro-/Praxisfläche
Kategorie
Bürogebäude
Baujahr
2003
Bezug
sofort
Energie & Heizung
Warum sehe ich diese Anzeige? – Du siehst diese Anzeige basierend auf Ihrer Navigation auf unserer Website und den Suchkriterien, die du verwendet hast.
Weitere Energiedaten
Energieträger
Gas
Details
Objektbeschreibung
Kurzbeschreibung
Gerne stehen wir für eine Besichtigung zur Verfügung.
Objekt
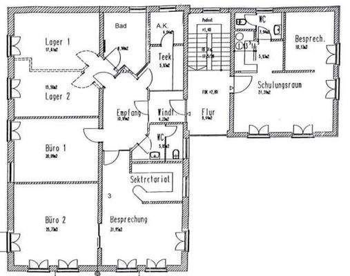
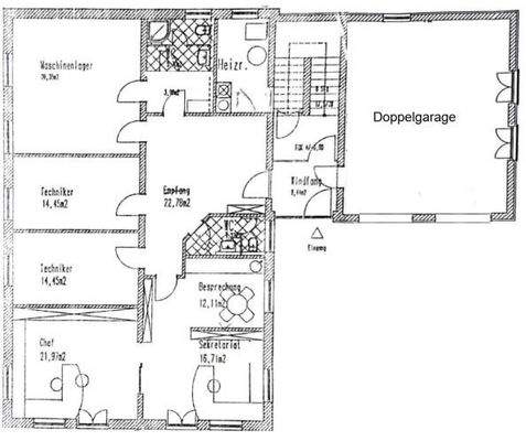
Das zum Verkauf stehende Bürohaus befindet sich in ruhiger Lage in einem Gewerbegebiet in Bad Abbach. Eine Bushaltestelle ist vorhanden. Durch die nahegelegene Autobahn A 93 und die Bundesstraße B 15 besteht eine hervorragende Anbindung...
Ausstattung
Lage: Bad Abbach
Kaufpreis: EUR 1.100.000,-
Fläche: ca. 380 m²
Grundstück: ca. 1154 m²
Lageart: sonstiges
Zimmeranzahl: 12
Baujahr: 2003
Geschoss(e): E + 1
Bezug: sofort
teilbar ab: nein
Stellplatzanzahl: 7
Stellplatzpreis: EUR 0,-
Fußweg zum RVV: 5 min.
Fahrtzeit Bahnhof: 5...
Weitere Informationen
Sonstiges
Um eine schnelle Bearbeitung zu gewähren benötigen wir Ihre Telefonnummer sowie Ihre komplette Adresse.
Stichworte
Nutzfläche: 380,00 m², Grundstücksfläche: 1.154,00 m², Bundesland: Bayern, Distanz zur Autobahn: 2, Distanz zum Bus: .5, Distanz zum Hauptbahnhof: 2, Distanz zum Flughafen:...
Anbieter der Immobilie

Trummer Immobilien GmbH & Co. KG
Online-ID: 2nf8m57
Referenznummer: IB 3933
Finde Angebote wie dieses
Hier geht es zu unserem Impressum, den Allgemeinen Geschäftsbedingungen, den Hinweisen zum Datenschutz und nutzungsbasierter Online-Werbung.