

Lütt Immobilien GmbH
Herr Ralf Sabelus
004 ···
Nr. anzeigenPreise & Kosten
Provision für Käufer
provisionsfrei
Lage
Das Objekt befindet sich in einer ruhigen Wohnlage am Rand des Ortkerns von Selent, einer beliebten Gemeinde in der Holsteinischen Schweiz. Die Umgebung ist geprägt von gepflegten Einfamilienhäusern, kleinen Wohnanlagen sowie großzügigen Grünflächen, die für ein angenehmes und familienfreundliches Wohnumfeld sorgen. Durch die...
Das Haus
Kategorie
Einfamilienhaus
Baujahr
1964
Energie & Heizung
Warum sehe ich diese Anzeige? – Du siehst diese Anzeige basierend auf Ihrer Navigation auf unserer Website und den Suchkriterien, die du verwendet hast.
Energieausweistyp
Verbrauchsausweis
Gebäudetyp
Wohngebäude
Baujahr laut Energieausweis
1987
Wesentliche Energieträger
OEL
Gültigkeit
bis 20.11.2035
Effizienzklasse
G
Endenergieverbrauch
237,00 kWh/(m²·a)
Weitere Energiedaten
Energieträger
Holz, Öl
Heizungsart
Zentralheizung
Details
Objektbeschreibung
Wir freuen uns, Ihnen als Nachweis- und/oder Vermittlungsmakler folgendes Objekt anbieten zu dürfen:
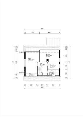
Dieses klassische Einfamilienhaus mit rotem Klinker und ausgebautem Satteldach liegt inmitten eines ruhigen Wohngebiets in 24328 Selent und wartet darauf, mit frischem Leben erfüllt zu werden. Auf ca. 103 m² Wohnfläche...
Ausstattung
- Wohnfläche ca. 103 m²
- Grundstücksgröße: 1.009 m² - viel Platz für Garten, Spiel oder Gemüsebeet
- Großzügiges Wohn-Esszimmer mit Zugang zur Terrasse
- Schlafzimmer im Erdgeschoss - ideal für barrierearmes Wohnen
- Vollbad mit Fenster im Erdgeschoss
- Küche mit Blick in den Garten
- 3 Schlafräume im...
Preisinformation
1 Garagenstellplatz
Weitere Informationen
Sonstiges
Bitte teilen Sie uns bei jeder Onlineanfrage Ihre vollständigen Kontaktdaten inklusive Anschrift, Emailadresse und Telefonnummer mit, damit Ihre Anfrage zeitnah bearbeitet werden kann.
Die Maklercourtage unserer angebotenen Objekte beträgt grundsätzlich 7,14% des beurkundeten Kaufpreises bei Immobilien und...
Anbieter der Immobilie
Lütt Immobilien GmbH
Auguste-Viktoria-Str 14, 24103 Kiel

Online-ID: 2nf895u
Referenznummer: 385529
Finde Angebote wie dieses
Hier geht es zu unserem Impressum, den Allgemeinen Geschäftsbedingungen, den Hinweisen zum Datenschutz und nutzungsbasierter Online-Werbung.