

ImmoFairKauf GmbH
Herr Robin Jurrmann
039 ···
Nr. anzeigenPreise & Kosten
Provision für Käufer
4,76% inkl. 19% MwSt. des notariellen Kaufpreises
Lage
Makrolage
Das Objekt befindet sich in Dessau-Roßlau, einer etablierten Tourismus- und Kulturstadt in Sachsen-Anhalt. Die Stadt ist international bekannt als Bauhaus-Standort und profitiert zusätzlich von ihrer Lage im Herzen der WelterbeRegion Anhalt-Dessau-Wittenberg und dem Biosphärenreservat mittlere Elbe. Diese...
Gastronomie/Hotel
Kategorie
Café/Bar
Energie & Heizung
Warum sehe ich diese Anzeige? – Du siehst diese Anzeige basierend auf Ihrer Navigation auf unserer Website und den Suchkriterien, die du verwendet hast.
Weitere Energiedaten
Heizungsart
offener Kamin
Details
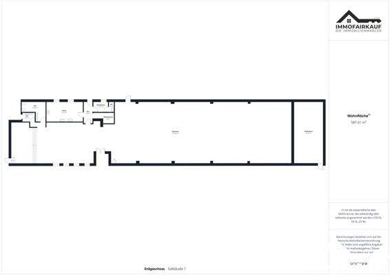
Objektbeschreibung
Bowling mit Gastronomie und Stellplatz für Reisemobile
Das noch in Betrieb befindliche Geschäft in Dessau-Roßlau stellt ein vielseitig nutzbares Freizeit- und Gastronomieensemble dar, das auf einen wirtschaftlich nachhaltigen Betrieb ausgelegt ist. Das Objekt verbindet ganzjährig Nutzung des Bowling-Centers mit...
Ausstattung
- Großzügiger Gastraum, geeignet für Firmenfeiern, Familienfeste, Vereinsveranstaltungen sowie für die Bewirtung der Stellplatzgäste
- Bowlingbereich mit 6 Bahnen als wetterunabhängiges Freizeitangebot mit Gastronomiebetrieb
- Stellplatz mit ca. 50 Wohnmobile und autarke Wohnwagen
- Ver- und Entsorgungsstation für...
Weitere Informationen
Sonstiges
Alle Daten in diesem Exposé beruhen auf Angaben des Verkäufers. Die Objektangaben wurden mit großer Sorgfalt zusammengestellt. Für die Richtigkeit der Verkäufer-, Anbieter- und Angebotsangaben können wir keine Haftung übernehmen. Irrtümer bleiben vorbehalten.
Anfragen ohne Telefonnummer und Adresse können...
Anbieter der Immobilie

Online-ID: 2nf7g53
Referenznummer: 193
Finde Angebote wie dieses
Hier geht es zu unserem Impressum, den Allgemeinen Geschäftsbedingungen, den Hinweisen zum Datenschutz und nutzungsbasierter Online-Werbung.