

Keller Williams Hamburg
Herr Michael Wüster
017 ···
Nr. anzeigenPreise & Kosten
Provision für Käufer
3,00 Prozent inkl. 19 % MwSt.
Bei Abschluss eines notariellen Kaufvertrags ist vom Käufer eine Provision in Höhe von 3,00?% inkl. MwSt. auf den beurkundeten Kaufpreis zu zahlen. Weitere Informationen siehe Provisionshinweis.
Lage
Das exklusive doppelgeschossige Penthouse befindet sich im begehrten Stadtteil Wellingsbüttel, im Norden Hamburgs. Diese ruhige und grüne Wohngegend ist bekannt für ihre gehobene Atmosphäre und die Nähe zur Natur. Das fußläufig erreichbare Alstertal lädt mit seinen weitläufigen Spazier- und Radwegen zur Erholung und zu...
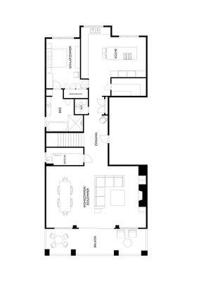
Die Wohnung
Kategorie
Penthouse
Wohnungslage
1. Geschoss
Bezug
sofort
Wohnanlage
Energie & Heizung
Warum sehe ich diese Anzeige? – Du siehst diese Anzeige basierend auf Ihrer Navigation auf unserer Website und den Suchkriterien, die du verwendet hast.
Energieausweistyp
Bedarfsausweis
Gebäudetyp
Wohngebäude
Wesentliche Energieträger
Gas
Gültigkeit
seit 26.11.2019
Effizienzklasse
B
Endenergiebedarf
73,00 kWh/(m²·a)
Weitere Energiedaten
Energieträger
Gas
Heizungsart
offener Kamin
Details
Objektbeschreibung
Entdecken Sie das beeindruckende, doppelstöckige Penthouse im Herzen von Hamburg-Wellingsbüttel, das sich durch seine luxuriöse Ausstattung und moderne Architektur auszeichnet. Dieses exklusive Objekt aus dem Baujahr 2016 präsentiert sich in einem neuwertigen Zustand und wird höchsten Ansprüchen gerecht. Im zweiten...
Ausstattung
Diese exklusive Immobilie besticht durch eine luxuriöse Ausstattung, die höchsten Ansprüchen gerecht wird. Der Eingangsbereich beeindruckt mit einem direkten Zugang zum Aufzug, der Sie bequem in beide Etagen bringt. Hohe Decken, deckenhohe Türen und geputzte Wände verleihen den Wohnräumen ein großzügiges und elegantes...
Preisinformation
2 Tiefgaragenstellplätze, Kaufpreis je: 30.000,00 EUR
Weitere Informationen
Provisionshinweis
3,00 Prozent inkl. 19 % MwSt.
Bei Abschluss eines notariellen Kaufvertrags ist vom Käufer eine Provision in Höhe von 3,00?% inkl. MwSt. auf den beurkundeten Kaufpreis zu zahlen. Die Provision ist verdient und fällig mit der notariellen Beurkundung. Mit dem Eigentümer wurde ein provisionspflichtiger...
Anbieter der Immobilie
Keller Williams Hamburg
Grindelallee 153, 20146 Hamburg

Online-ID: 2nf4n5a
Referenznummer: WE-25998
Finde Angebote wie dieses
Hier geht es zu unserem Impressum, den Allgemeinen Geschäftsbedingungen, den Hinweisen zum Datenschutz und nutzungsbasierter Online-Werbung.