

BeSmart Immobilien e.K.
Frau Silke Treder
041 ···
Nr. anzeigenPreise & Kosten
Provision für Käufer
2,50 % inkl. MwSt. des notariell beurkundeten Kaufpreises
Lage
Die Liegenschaft befindet sich in einer der schönsten und bevorzugtesten Lagen von Aumühle. Die Gemeinde liegt direkt am Rande des Sachsenwaldes – eines der beliebtesten Naherholungsgebiete im Osten der Metropolregion Hamburg.
Die Bebauung der Region ist mehrheitlich geprägt durch Einfamilien- sowie Doppelhäuser. Um...
Das Haus
Kategorie
Einfamilienhaus
Baujahr
1959
Bezug
sofort
Energie & Heizung
Warum sehe ich diese Anzeige? – Du siehst diese Anzeige basierend auf Ihrer Navigation auf unserer Website und den Suchkriterien, die du verwendet hast.
Energieausweistyp
Verbrauchsausweis
Gebäudetyp
Wohngebäude
Baujahr laut Energieausweis
1959
Wesentliche Energieträger
Gas
Gültigkeit
27.09.2025 bis 26.09.2026
Effizienzklasse
E
Endenergieverbrauch
158,20 kWh/(m²·a)
Weitere Energiedaten
Energieträger
Gas
Heizungsart
Fußbodenheizung, Zentralheizung
Details
Objektbeschreibung
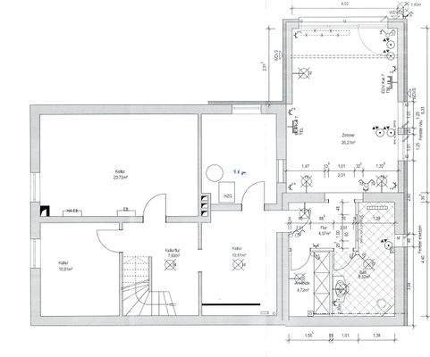
Bei der angebotenen Immobilie handelt es sich um ein historisch gewachsenes Zweifamilienhaus, dessen erster Teil 1959 als klassisches Siedlerhaus mit Vollkeller in massiver Bauweise errichtet wurde.
1980 wurde die Immobilie durch einen westlichen Anbau inklusive Unterkellerung erweitert, so dass ausreichend Wohnraum...
Ausstattung
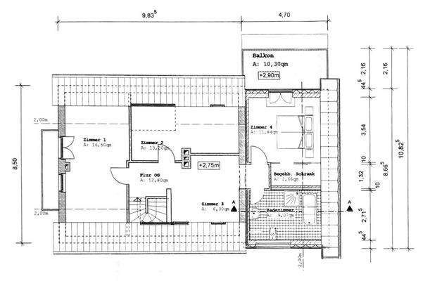
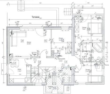
Raumaufteilung
Das Zweifamilienhaus wird über einen verglasten Windfang betreten, von dem aktuell die jeweiligen Wohnungseingangstüren zu den beiden Wohnungen führen.
Nimmt der Besucher die rechte Tür gelangt man in die Diele der Erdgeschossebene, die sich als praktischer Garderobenbereich entpuppt. Von dort...
Weitere Informationen
Sonstiges
Grundstück
Die Immobilie überzeugt mit einem natürlich angelegten Garten mit Südausrichtung auf über 1.300 m² Fläche. Während sich vor dem Haus der klassische Hofplatz befindet, bietet der rückwärtige Garten einen schönen Rückzug vom Alltag und herrlichem Blick ins Grüne. Eine weitläufige Rasenfläche...
Anbieter der Immobilie
BeSmart Immobilien e.K.
Große Straße 28, 21521 Aumühle

Online-ID: 2nf4a5w
Referenznummer: 20260305
Finde Angebote wie dieses
Hier geht es zu unserem Impressum, den Allgemeinen Geschäftsbedingungen, den Hinweisen zum Datenschutz und nutzungsbasierter Online-Werbung.