RE/MAX Krummhörn in Ostfriesland

Herr Marcel Meyer

Charmantes Einfamilienhaus in Suurhusen - Perfekt für Ihre Familie!

€ 235.000
Kaufpreis
139 m²
Wohnfläche ca.
4
Zimmer
823 m²
Grundstücksfl. ca.

Der Anbieter dieses Objekts hat gegenüber der AVIV Germany GmbH als Betreiber dieses Online-Marktplatzes erklärt, nicht als Unternehmer im Sinne des § 1 KSchG zu handeln. Die im Verbraucherschutzrecht der Union verankerten Verbraucherrechte (insbesondere Informationspflichten und Rücktritts- bzw. Widerrufsrechte) finden auf den Vertrag zwischen dem Anbieter des Objekts und Ihnen (dem Interessenten) keine Anwendung.

Gewerblicher Anbieter

Der Anbieter dieses Objekts hat gegenüber der AVIV Germany GmbH als Betreiber dieses Online-Marktplatzes erklärt, als Unternehmer im Sinne des § 1 KSchG zu handeln.

AdresseStraße nicht freigegeben
26759 Hinte 
(Suurhusen)
Auf Karte ansehen

Preise & Kosten

Kaufpreis € 235.000

Provision für Käufer

3,00 % inkl. 19% MwSt.

Lage

Suurhusen ist ein Ortsteil der Gemeinde Hinte im Landkreis Aurich in Niedersachsen. Der beschauliche Ort liegt nur wenige Kilometer nordwestlich von Emden und bietet eine ruhige, ländliche Wohnlage mit guter Anbindung an die umliegenden Städte. Die Nähe zur Nordseeküste prägt die Region und sorgt für eine hohe...

Mehr anzeigen

Das Haus

Kategorie

Einfamilienhaus

Baujahr

1975

  • Zustand: gepflegt
  • 3 Stellplätze: Garage, Außen-Stellplatz

Energie & Heizung

A+
A
B
C
D
E
F
G
H
0 25 50 75 100 125 150 175 200 225 250 +

Energieausweistyp

Bedarfsausweis

Gebäudetyp

Wohngebäude

Baujahr laut Energieausweis

1975

Wesentliche Energieträger

GAS

Gültigkeit

bis 18.06.2034

Effizienzklasse

G

Endenergiebedarf

221,30 kWh/(m²·a)

Weitere Energiedaten

Energieträger

Gas

Details

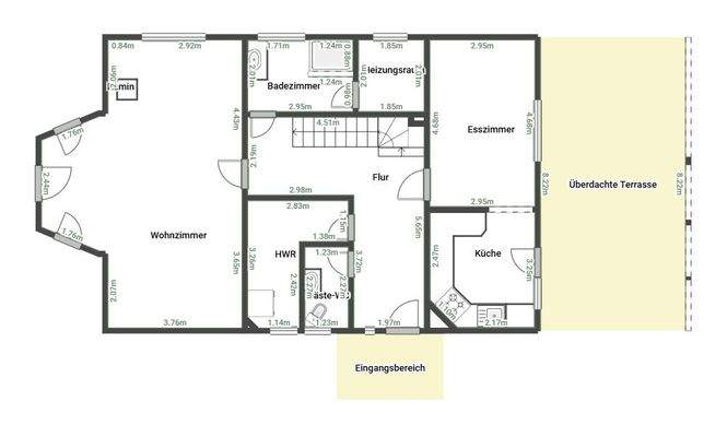
Objektbeschreibung

Willkommen in Ihrem neuen Zuhause!
Dieses gepflegte Einfamilienhaus in Suurhusen, einem Ortsteil der Gemeinde Hinte in Niedersachsen, bietet alles, was das Familienherz begehrt: viel Platz, eine durchdachte Raumaufteilung und eine idyllische Lage.

Das Haus liegt in einer ruhigen Wohngegend auf einem Eckgrundstück...

Mehr anzeigen

Ausstattung

- Außenjalousien
- Therme 2001
- Garage
- Gartenhaus
- Einbauküche
- Bad EG ca. 2016 erneuert
- Überdachte Terrasse
- großes Eigentums - Grundstück
- FI fehlt im Zählerkasten

Preisinformation


Der Käufer zahlt im Erfolgsfall an das RE/MAX Büro Krummhörn eine Käuferprovision in Höhe von 3,00 % inkl. 19% MwSt. Die Provision errechnet sich aus dem beurkundeten Kaufpreis., 2 Stellplätze
1 Garagenstellplatz

Weitere Informationen

Sonstiges
Gerne vermitteln wir Ihnen über unseren unabhängigen Finanzdienstleister ein günstiges und auf Sie individuell angepasstes Finanzierungsangebot.

Unsere Spezialisten für alle Bereiche rund ums Haus stehen Ihnen gerne zur Verfügung. Ob Handwerksfirmen, Raumausstatter oder Versicherer - wir lassen Sie auch...

Mehr anzeigen

Anbieter der Immobilie

Partner

RE/MAX Krummhörn in Ostfriesland

im Durchschnitt  5,00  Sterne
(bei 6 Bewertungen)

Burgstraße 27, 26736 Pewsum

Geschäftszeiten
user

Herr Marcel Meyer

Dein Ansprechpartner

Anbieter-Website Anbieter-Profil Anbieter-Impressum

Online-ID: 2nf3g5l

Referenznummer: 1088-15-MM

Finde Angebote wie dieses

imageimageimage

Hier geht es zu unserem Impressum, den Allgemeinen Geschäftsbedingungen, den Hinweisen zum Datenschutz und nutzungsbasierter Online-Werbung.