
Bauunternehmen Dirk Kage GmbH
Herr Gunnar Struckmeyer
+49 ···
Nr. anzeigenPreise & Kosten
Provision für Käufer
provisionsfrei
Lage
Das Grundstück liegt im östlichen Bereich der Freien und Hansestadt Hamburg im Stadtteil Billstedt, der zum Bezirk Hamburg-Mitte gehört. Billstedt ist ein größtenteils urban geprägter Stadtteil mit einer Mischung aus Wohn-, Gewerbe- und Grünflächen sowie einer guten Verkehrsanbindung an das Hamburger Stadtzentrum. In der...
Das Haus
Kategorie
Doppelhaushälfte
Energie & Heizung
Warum sehe ich diese Anzeige? – Du siehst diese Anzeige basierend auf Ihrer Navigation auf unserer Website und den Suchkriterien, die du verwendet hast.
Weitere Energiedaten
Heizungsart
Fußbodenheizung
Details
Objektbeschreibung
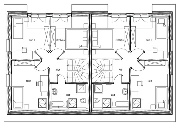
Beworben wird die westliche Doppelhaushälfte. Für das Doppelhaus gibt es bereits einen fertigen Bauantrag und einen Käufer für die östliche Doppelhaushälfte. Ein zügiger Baustart ist daher möglich.
Die geplante Doppelhaushälfte mit den Außenmaßen 10,00 x 7,50 m und einer Grundfläche von ca. 115 m² / Wohnfläche ca. 110...
Ausstattung
Das Haus verfügt bereits standardmäßig über eine qualitativ sehr hochwertige Grundausstattung. Die unten aufgeführten Ausstattungsmerkmale zeigen nur einen kleinen Ausschnitt.
Rund ums Haus:
- Baugrunduntersuchung
- Baugerüst, Baustellen-WC, Bauschuttentsorgung
Gebäudehülle:
- Blower-Door-Test
-...
Weitere Informationen
Sonstiges
Sonstiges
Im oben genannten Preis ist die geplante Doppelhaushälfte mit allen vorstehend aufgeführten Extras sowie der Grundstücksanteil von ca. 473 m² enthalten.
Nicht enthalten sind: Die Ankaufkosten wie Grunderwerbsteuer (5,5 %), die Notar- und Gerichtskosten (ca. 2-3 %) sowie die...
Anbieter der Immobilie
Bauunternehmen Dirk Kage GmbH
Kieler Straße 33 b, 25551 Hohenlockstedt
Online-ID: 2nf3c5a
Referenznummer: GS1978
Finde Angebote wie dieses
Hier geht es zu unserem Impressum, den Allgemeinen Geschäftsbedingungen, den Hinweisen zum Datenschutz und nutzungsbasierter Online-Werbung.