
Evernest GmbH
Philipp Becker
+49 ···
Nr. anzeigenPreise & Kosten
Provision für Käufer
2.97 inkl. MwSt.
Bei Abschluss eines notariellen Kaufvertrages ist eine Käuferprovision vom Käufer in Höhe von 2.97 % inkl. MwSt. aus dem Kaufpreis fällig.
Lage
Die Brunnengasse in Weinheim-Hohensachsen vereint das Beste aus zwei Welten: die idyllische Ruhe eines charmanten Bergstraßenortes mit der komfortablen Anbindung an die pulsierende Metropolregion Rhein-Neckar. Hier erleben Sie echte Lebensqualität in einer der begehrtesten Lagen der Region.
Umgeben von der malerischen...
Das Haus
Kategorie
Mehrfamilienhaus
Baujahr
1900
Energie & Heizung
Warum sehe ich diese Anzeige? – Du siehst diese Anzeige basierend auf Ihrer Navigation auf unserer Website und den Suchkriterien, die du verwendet hast.
Energieausweistyp
Bedarfsausweis
Gebäudetyp
Wohngebäude
Effizienzklasse
H
Endenergiebedarf
361,50 kWh/(m²·a)
Weitere Energiedaten
Energieträger
Elektro
Details
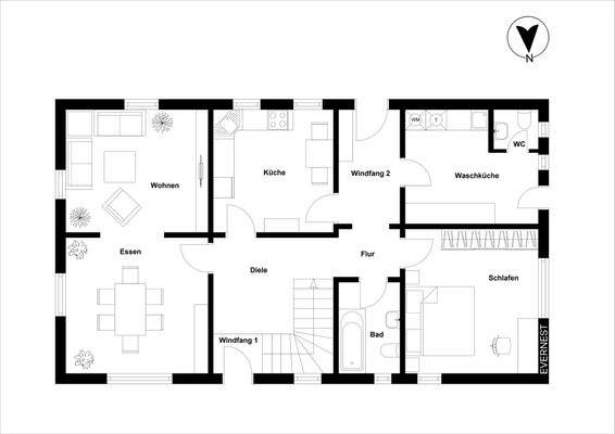
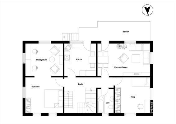
Objektbeschreibung
In einer ruhigen und dennoch zentralen Lage von Weinheim, Hohensachsen präsentiert sich ein solides 2-Familienhaus aus etwa dem Jahr 1900 mit zwei getrennten Wohneinheiten. Diese vielseitige Immobilie eignet sich sowohl als etablierte Kapitalanlage mit sofortigen Mieteinnahmen als auch für Eigennutzer, die entweder das...
Ausstattung
- 2 Wohneinheiten
- Nachtspeicheröfen
- Gewölbekeller
- Geräumiger Spitzboden mit Ausbaupotential
- Außenstellplätze
Weitere Informationen
Stichworte
Stellplatz vorhanden, Anzahl der Schlafzimmer: 3, Anzahl der Badezimmer: 2, Anzahl Balkone: 1, Anzahl Terrassen: 1, 2 Etagen
Anbieter der Immobilie
Online-ID: 2newx5s
Referenznummer: L-CTBCYDW
Finde Angebote wie dieses
Hier geht es zu unserem Impressum, den Allgemeinen Geschäftsbedingungen, den Hinweisen zum Datenschutz und nutzungsbasierter Online-Werbung.