
Dieckmann Immobilien GmbH
Frau Samantha Zeiser
004 ···
Nr. anzeigenPreise & Kosten
Kaution
3 Netto Kaltmieten
Provision für Mieter
2,38 KM inkl. MwSt. inkl. MwSt.
Warum sehe ich diese Anzeige? – Du siehst diese Anzeige basierend auf Ihrer Navigation auf unserer Website und den Suchkriterien, die du verwendet hast.
Lage
Die Gewerbefläche befindet sich in gut erreichbarer Lage von Menden an einer etablierten Hauptverkehrsachse. Die Umgebung ist geprägt von einer gemischten Nutzung mit Dienstleistungs-, Praxis- und Gewerbebetrieben, wodurch sich der Standort besonders für Arztpraxen, therapeutische Einrichtungen oder vergleichbare...
Büro-/Praxisfläche
Kategorie
Praxisfläche
Baujahr
1920
Bezug
sofort
Energie & Heizung
Warum sehe ich diese Anzeige? – Du siehst diese Anzeige basierend auf Ihrer Navigation auf unserer Website und den Suchkriterien, die du verwendet hast.
Wärme
Energieausweistyp
Bedarfsausweis
Gebäudetyp
Nicht-Wohngebäude
Baujahr laut Energieausweis
1920
Wesentliche Energieträger
ELECTRICITY
Gültigkeit
bis 27.07.2033
Endenergiebedarf (Wärme)
198,69 kWh/(m²·a)
Details
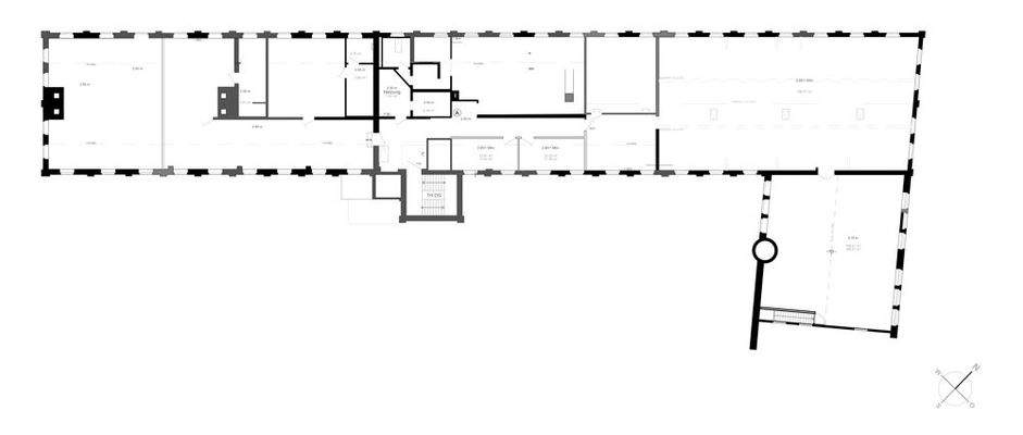
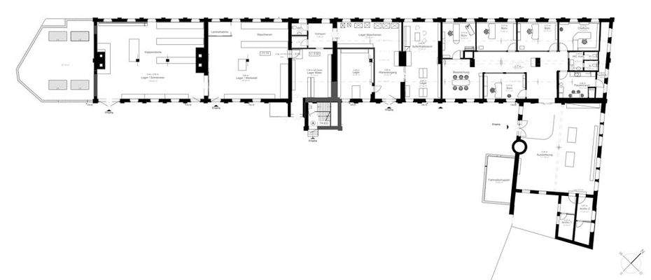
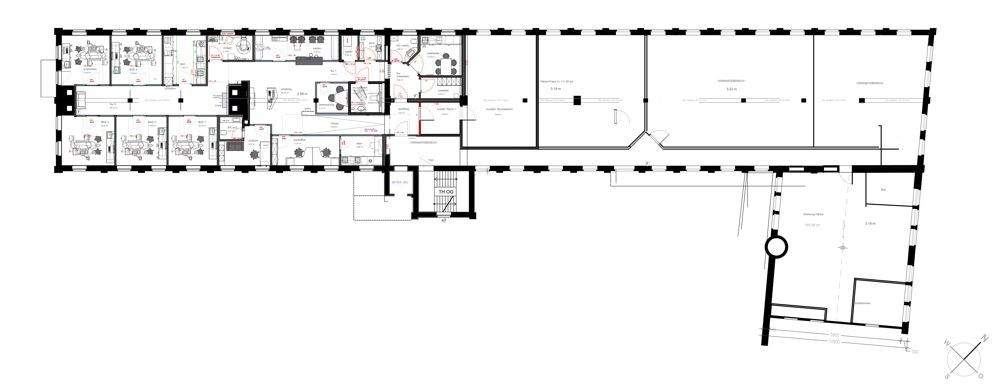
Objektbeschreibung
In zentraler Lage von Menden wartet ein vielseitiges Gewerbeobjekt im modernen Industrial-Look darauf, nach Ihren Vorstellungen gestaltet zu werden. Die Flächen befinden sich noch im Ausbauzustand und werden aktuell vollständig ausgeräumt - ideal, um Ihre eigenen Raumkonzepte ohne Einschränkungen umzusetzen.
Im 1...
Ausstattung
- Flexibel teilbare Flächen (1. OG ca. 280 m², DG ca. 680 m²)
- Sanierungs- bzw. ausbaufähiger Zustand
- Neue Fenster vorhanden, Einbau folgt
- Zentrale Lage in Menden
- Parkplätze am Gebäude
- Option auf Entwicklung zu einem Ärztezentrum
Weitere Informationen
Sonstiges
Alle Angaben sind ohne Gewähr und basieren ausschließlich auf Informationen, die uns von unserem Auftraggeber übermittelt wurden. Wir übernehmen keine Gewähr für die Vollständigkeit, Richtigkeit und Aktualität dieser Angaben.
GELDWÄSCHE: Als Immobilienmaklerunternehmen ist die von Dieckmann Immobilien GmbH...
Anbieter der Immobilie
Online-ID: 2newm5q
Referenznummer: 2223
Finde Angebote wie dieses
Hier geht es zu unserem Impressum, den Allgemeinen Geschäftsbedingungen, den Hinweisen zum Datenschutz und nutzungsbasierter Online-Werbung.