
Goldschild Immobilien GmbH
Herr Kristjan Lekocaj
004 ···
Nr. anzeigenPreise & Kosten
Provision für Käufer
provisionsfrei
Lage
Das Neubauprojekt befindet sich in einer der attraktivsten Lagen von Pliezhausen, zentral und dennoch ruhig gelegen.
In unmittelbarer Umgebung finden sich zahlreiche Einkaufsmöglichkeiten, Cafés, Restaurants sowie Schulen, Kindergärten und Sporteinrichtungen.
Dank der hervorragenden Verkehrsanbindung über die B27...
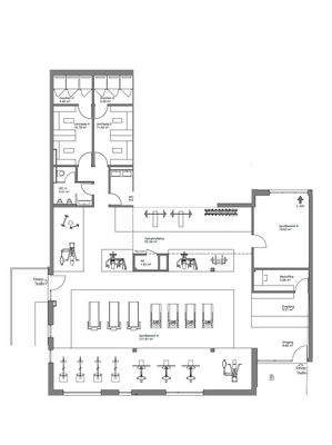
Büro-/Praxisfläche
Kategorie
Bürogebäude
Baujahr
2026
Geschoss
Erdgeschoss
Energie & Heizung
Warum sehe ich diese Anzeige? – Du siehst diese Anzeige basierend auf Ihrer Navigation auf unserer Website und den Suchkriterien, die du verwendet hast.
Wärme
Energieausweistyp
Bedarfsausweis
Gebäudetyp
Nicht-Wohngebäude
Baujahr laut Energieausweis
2024
Gültigkeit
bis 11.06.2033
Endenergiebedarf (Wärme)
5,00 kWh/(m²·a)
Weitere Energiedaten
Heizungsart
Fußbodenheizung
Details
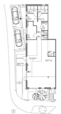
Objektbeschreibung
Im Herzen von Pliezhausen entsteht diese moderne Gewerbeeinheit - perfekt geeignet für Praxen, Büros, Kanzleien oder Dienstleistungsunternehmen. Auf ca. 140 m² Fläche profitieren Sie von einer flexiblen Raumaufteilung, barrierefreiem Zugang und energieeffizienter Bauweise.
Die Gewerbeeinheit GE 15 befindet sich im...
Ausstattung
Besondere Highlights
.Hochwertige Neubauausstattung
.Flexibel nutzbare Flächen für verschiedene Branchen
.Energieeffizientes Wohnen mit niedrigen Betriebskosten
.Gemeinschaftsgarten und modernes Wohnumfeld
.Zinsgünstige Finanzierung möglich durch KfW-Darlehen für gewerbliche Nutzung (KfW-Programm...
Weitere Informationen
Sonstiges
Da wir uns bei allen Angaben auf die Informationen Dritter stützen müssen, können wir keine Gewähr für deren Richtigkeit und Vollständigkeit übernehmen. Bitte haben Sie Verständnis dafür, dass wir nur Anfragen mit vollständiger Adressangabe und erreichbarer Handynummer bearbeiten können. Nachdem Ihre Anfrage per...
Anbieter der Immobilie
Online-ID: 2newk5j
Referenznummer: GI-KL-437
Finde Angebote wie dieses
Hier geht es zu unserem Impressum, den Allgemeinen Geschäftsbedingungen, den Hinweisen zum Datenschutz und nutzungsbasierter Online-Werbung.