

ImmoGrund Tegernsee
Frau Anna Aue
017 ···
Nr. anzeigenPreise & Kosten
Provision für Käufer
2,38% zzgl. MwSt.
Lage
Neuhaus liegt am südlichen Ende des Schliersees im Alpenvorland. Im Süden finden sich die Berge Brecherspitz, Spitzingsee-Plateau und Jägerkamp. Neuhaus/Schliersee - ein Outddor-Sportparadies:
See und Berge - das ist Lebensqualität für Sie!
Die Lage vom "Unser Schliers" könnte wohl kaum besser sein: zentral und...
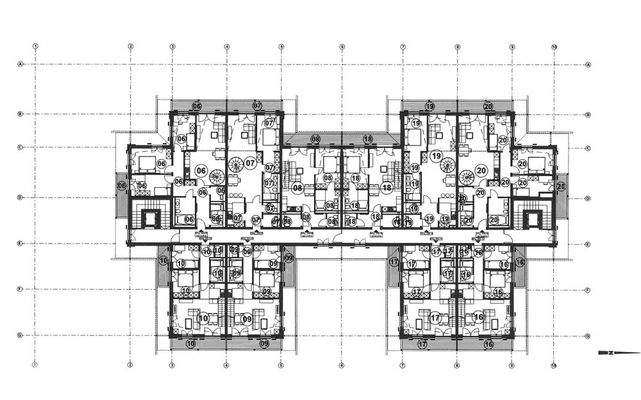
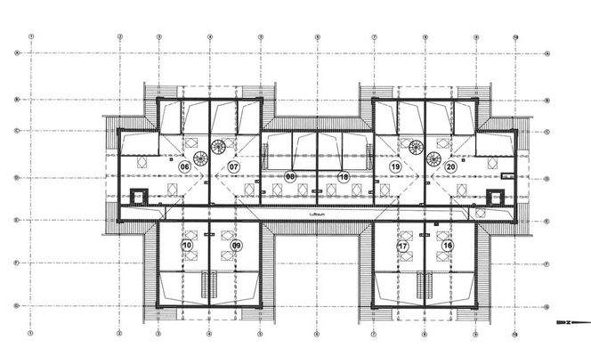
Die Wohnung
Wohnungslage
2. Geschoss (Dachgeschoss)
Bezug
ab sofort
Wohnanlage
Energie & Heizung
Warum sehe ich diese Anzeige? – Du siehst diese Anzeige basierend auf Ihrer Navigation auf unserer Website und den Suchkriterien, die du verwendet hast.
Energieausweistyp
Bedarfsausweis
Gebäudetyp
Wohngebäude
Wesentliche Energieträger
LUFTWP
Gültigkeit
bis 31.10.2025
Effizienzklasse
A+
Endenergiebedarf
18,00 kWh/(m²·a)
Weitere Energiedaten
Energieträger
Gas
Heizungsart
Fußbodenheizung, Luft-/Wasser-Wärmepumpe
Details
Objektbeschreibung
Die 4 Zi. Wohnung mit einer ca. 80 m² Galerie, wow das ist Lebensgefühl. Große Fensterfronten im 2. OG und 5 Dachliegefenster belichten diese Wohnung. Die Raumhöhen vermitteln eine ganz besonderes Raumgefühl. Im Galeriebereich befindet sich der Masterschlafbereich mit en suite Bad, freistehender Badewanne und...
Ausstattung
Das Haus ist barrierefrei errichtet
Durchdachte Architektur und Raumgestaltung
Alle Bäder erhalten eine hochwertige Sanitärausstattung mit Elektro-Handtuchwärmer, bodengleiche Duschen mit Ganzglasabtrennung, Badewanne
Bäder:
Bodenbelag mit Fliesen aus Feinsteinzeug 60 cm x 60 cm
Wände mit Fliesen aus...
Preisinformation
2 Tiefgaragenstellplätze, Kaufpreis je: 35.000,00 EUR
Weitere Informationen
Sonstiges
Alle Angaben sind ohne Gewähr und basieren ausschließlich auf Informationen, die uns vom Verkäufer zur Verfügung gestellt wurden. Darstellungen/Möblierungen sind Visualisierungen, die nur als Idee für den Käufer zur Verfügung stehen und nicht im Kaufpreis enthalten sind.
Die Grunderwerbsteuer, Notar- und...
Anbieter der Immobilie
ImmoGrund Tegernsee
Radlmaierweg 1, 83707 Bad Wiessee

Online-ID: 2nev85s
Referenznummer: 66_6
Finde Angebote wie dieses
Hier geht es zu unserem Impressum, den Allgemeinen Geschäftsbedingungen, den Hinweisen zum Datenschutz und nutzungsbasierter Online-Werbung.