
Friedrichs Immobilien GmbH
Herr Stefan Hungerland
004 ···
Nr. anzeigenPreise & Kosten
Provision für Käufer
7,14 % des Kaufpreises inkl. 19 % MwSt.
Lage
Die Immobilie befindet sich direkt an der Flaniermeile des Kur- und Ferienortes Bad Zwischenahn und besticht durch ihre Meerblicklage gegenüber dem beliebten und stark frequentierten Kurpark, u. a. auch mit Fähranleger. Nutzen Sie diese seltene Gelegenheit als Gastronom oder auch als Kapitalanleger für eine lukrative...
Das Haus
Baujahr
1909
Bezug
bezugsfrei
Energie & Heizung
Warum sehe ich diese Anzeige? – Du siehst diese Anzeige basierend auf Ihrer Navigation auf unserer Website und den Suchkriterien, die du verwendet hast.
Wärme
Strom
Energieausweistyp
Bedarfsausweis
Gebäudetyp
Nicht-Wohngebäude
Baujahr laut Energieausweis
1909
Wesentliche Energieträger
GAS
Gültigkeit
bis 25.11.2035
Endenergiebedarf (Wärme)
482,50 kWh/(m²·a)
Endenergiebedarf (Strom)
78,80 kWh/(m²·a)
Weitere Energiedaten
Energieträger
Gas
Details
Objektbeschreibung
Bedarfsausweis (Wohnen): 285,9 kWh / Erdgas E / H
Bedarfsausweis (Gewerbe): 672,6 kWh / Erdgas E
SELTENE GELEGENHEIT! Dieses charaktervolle Wohn- und Geschäftshaus (HINWEIS: kein Denkmalschutz!) im Ortskern von Bad Zwischenahn bietet Ihnen eine Gewerbefläche im Hochparterre, in der sich bisher das bekannte und...
Ausstattung
Für weitere Beschreibungsmerkmale und Hinweise zu den baurechtlichen Möglichkeiten fordern Sie gerne unser ausführliches Exposé an.
Weitere Informationen
Stichworte
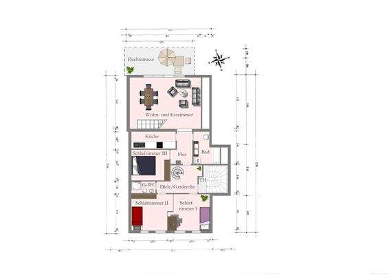
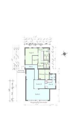
Carport vorhanden, Stellplatz vorhanden, Nutzfläche: 299,00 m², Gesamtfläche: 421,00 m², Bürofläche: 6,00 m², Anzahl Balkone: 2, Anzahl Terrassen: 1, 3 Etagen
Anbieter der Immobilie
Friedrichs Immobilien GmbH
Peterstraße 37, 26160 Bad Zwischenahn
Online-ID: 2neun5r
Referenznummer: 150552
Finde Angebote wie dieses
Hier geht es zu unserem Impressum, den Allgemeinen Geschäftsbedingungen, den Hinweisen zum Datenschutz und nutzungsbasierter Online-Werbung.