

Rutz Immobilien GmbH
Herr Cedric Rutz
042 ···
Nr. anzeigenPreise & Kosten
Provision für Käufer
3,57 % (inkl. MwSt.) vom beurkundeten Kaufpreis (Käuferprovision)
Lage
Die angebotene Immobilie befindet sich in einem gewachsenen und überwiegend ruhigen Wohngebiet in Delmenhorst, eingebettet zwischen klassischer Einfamilienhausbebauung und dem modern geprägten Hasporter Damm. Die Lage vereint die Vorteile stadtnaher Infrastruktur mit einer angenehmen Wohnqualität im nordwestlichen Bereich von...
Das Haus
Kategorie
Einfamilienhaus
Baujahr
1964
Bezug
nach Absprache
Energie & Heizung
Warum sehe ich diese Anzeige? – Du siehst diese Anzeige basierend auf Ihrer Navigation auf unserer Website und den Suchkriterien, die du verwendet hast.
Energieausweistyp
Bedarfsausweis
Gebäudetyp
Wohngebäude
Baujahr laut Energieausweis
1964
Wesentliche Energieträger
GAS
Gültigkeit
bis 28.01.2036
Effizienzklasse
G
Endenergiebedarf
224,40 kWh/(m²·a)
Weitere Energiedaten
Energieträger
Gas
Heizungsart
offener Kamin, Zentralheizung
Details
Objektbeschreibung
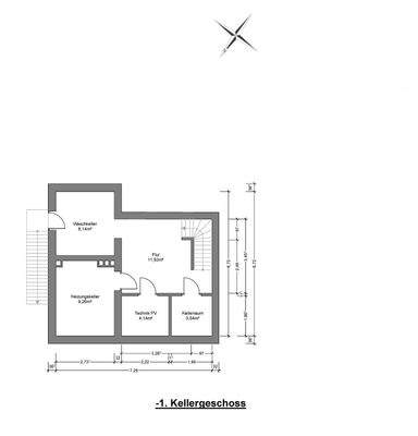
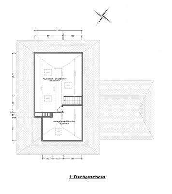
Dieses freistehende Einfamilienhaus aus dem Jahr 1964 befindet sich in Delmenhorst Hasport und bietet auf zwei Grundstücken von ca. 1.360 m² ein attraktives Zuhause für Familien oder Paare. Die Wohnfläche im Erdgeschoss beträgt ca. 123 m² und wird durch zusätzliche Nutzflächen im Dachgeschoss ergänzt.
Der...
Ausstattung
+ Viessmann Gas-Zentralheizung mit Warmwasserspeicher (2012)
+ Kaminofen
+ Zweifachverglaste Kunststoffenster (2015)
+ Teilweise Holzfenster (1979)
+ Veluxfester mit Verdunklung im DG (2019)
+ Vorbaurolläden im EG
+ PV-Anlage (7 KW)
+ Batteriespeicher (3 KW)
+ Zwei / Dreiadrige Elektrik
+...
Preisinformation
1 Stellplatz
1 Garagenstellplatz
Weitere Informationen
Sonstiges
Wir weisen darauf hin, dass die von uns weitergegebenen Objektinformationen, Unterlagen, Pläne etc. vom Auftraggeber stammen. Eine Haftung für die Richtigkeit oder Vollständigkeit der Angaben übernehmen wir nicht. Es obliegt daher unseren Kunden, die darin enthaltenen Objektinformationen und Angaben auf ihre...
Anbieter der Immobilie

Online-ID: 2nerx5e
Referenznummer: Ref.-Nr. 755
Finde Angebote wie dieses
Hier geht es zu unserem Impressum, den Allgemeinen Geschäftsbedingungen, den Hinweisen zum Datenschutz und nutzungsbasierter Online-Werbung.