
MIA Immobilien Martina Cifrek
Frau Martina Cifrek
079 ···
Nr. anzeigenPreise & Kosten
Provision für Käufer
3,57 %
Lage
Die Immobilie befindet sich in einer ruhigen und familienfreundlichen Umgebung in Künzelsau am Südhang.
Künzelsau ist die Kreisstadt des Hohenlohekreises und bietet sämtliche Einkaufsmöglichkeiten des täglichen Bedarfs und darüber hinaus.
Ebenso befinden sich alle weiterführenden Schulen und sogar eine...
Das Haus
Kategorie
Mehrfamilienhaus
Baujahr
1969
Bezug
sofort
Energie & Heizung
Warum sehe ich diese Anzeige? – Du siehst diese Anzeige basierend auf Ihrer Navigation auf unserer Website und den Suchkriterien, die du verwendet hast.
Energieausweistyp
Bedarfsausweis
Gebäudetyp
Wohngebäude
Baujahr laut Energieausweis
1969
Wesentliche Energieträger
OEL
Gültigkeit
bis 27.10.2035
Effizienzklasse
E
Endenergiebedarf
145,89 kWh/(m²·a)
Weitere Energiedaten
Energieträger
Öl
Heizungsart
Zentralheizung
Details
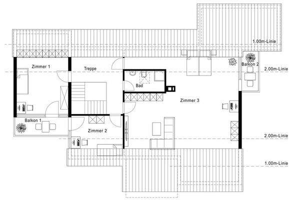
Objektbeschreibung
Willkommen in Ihrem neuen Zuhause in Künzelsau!
Dieses attraktive und freistehende Einfamilienhaus mit Einliegerwohnung befindet sich in begehrter Lage am Südhang und bietet einen großartigen Ausblick.
Erbaut im Jahr 1969, erstreckt sich das Wohnhaus über eine großzügige Wohnfläche von ca. 356 m² und befindet sich auf...
Ausstattung
+ großes Platzangebot
+ ruhige Hanglage in beliebter Wohngegend
+ Einliegerwohnung
+ Galerie
+ Wintergarten
+ schöner Ausblick über die Stadt
+ Tageslichtbäder
+ Werkstatt
+ Garage
+ Stellplatz
+ Garten
+ Öl-Zentralheizung
...das ist nur ein kurzer Überblick über die Vorzüge dieser...
Preisinformation
1 Stellplatz
1 Garagenstellplatz
Weitere Informationen
Sonstiges
PREIS AUF ANFRAGE.
Der Energieausweis liegt zur Ansicht vor. Weitere Informationen finden Sie im Exposé, welches Sie bei uns anfordern können. Aus Rücksicht auf die Privatsphäre des Mieters werden von der Einliegerwohnung keine Bilder veröffentlicht.
Dieses außergewöhnliche Objekt hat Ihr Interesse...
Anbieter der Immobilie
MIA Immobilien Martina Cifrek
Keltergasse 37, 74653 Künzelsau
Online-ID: 2nert5f
Referenznummer: A20260209-VB
Finde Angebote wie dieses
Hier geht es zu unserem Impressum, den Allgemeinen Geschäftsbedingungen, den Hinweisen zum Datenschutz und nutzungsbasierter Online-Werbung.