
ohne-makler.net - Immobilien selbst vermarkten
Privat vom Eigentümer
Kontaktiere den Anbieter schriftlich, es ist keine Telefonnummer hinterlegt.
Preise & Kosten
Provision für Käufer
provisionsfrei
Lage
Das Haus befindet sich in ruhiger, sonniger Lage im Sinsheimer Stadtteil Eschelbach. Das freistehende Anwesen liegt in einer angenehmen, gewachsenen Wohngegend mit gepflegten Einfamilienhäusern und einer freundlichen Nachbarschaft. Hier genießen Sie Ruhe und Privatsphäre, ohne auf die gute Anbindung an Sinsheim und die...
Das Haus
Kategorie
Einfamilienhaus
Baujahr
1961
Bezug
sofort
Energie & Heizung
Warum sehe ich diese Anzeige? – Du siehst diese Anzeige basierend auf Ihrer Navigation auf unserer Website und den Suchkriterien, die du verwendet hast.
Energieausweistyp
Bedarfsausweis
Gebäudetyp
Wohngebäude
Effizienzklasse
G
Endenergiebedarf
219,00 kWh/(m²·a)
Weitere Energiedaten
Energieträger
Elektro
Heizungsart
offener Kamin
Details
Objektbeschreibung
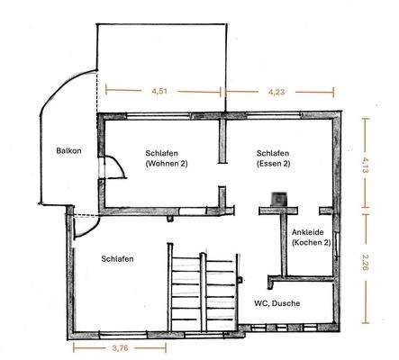
Dieses gepflegte und großzügige Einfamilienhaus bietet viel Raum zum Wohnen und Leben. Auf zwei Vollgeschossen und einem teilweise ausgebauten Dachgeschoss erwarten Sie eine funktionale Raumaufteilung und zahlreiche Nutzungsmöglichkeiten. Drei Bäder mit Toiletten, zwei Duschen und einer Badewanne sorgen für Wohnkomfort. Der...
Ausstattung
Balkon, Terrasse, Wintergarten, Garten, Keller, Dachterrasse, Vollbad, Duschbad, Einbauküche, Gäste-WC, Kamin, Parkett, Teppichboden, Fliesen, Sonstiges (s. Text)
Bemerkungen:
PV-Anlage
Preisinformation
1 Stellplatz
1 Garagenstellplatz
Weitere Informationen
Sonstiges
Heizungsart: Sonstiges (s. Text)
Energieträger: Strom
PV-Anlage
Makleranfragen nicht erwünscht. Nach § 7 UWG sind unaufgeforderte Kontaktaufnahmen durch Makler ohne ausdrückliche Einwilligung des Empfängers verboten!
ohne-makler (OM) ist weder Anbieter noch Vermittler der Immobilie. OM...
Anbieter der Immobilie
ohne-makler.net - Immobilien selbst vermarkten
Humboldtstr. 25 A, 21509 Glinde
Privat vom Eigentümer
Dein Ansprechpartner
Kontaktiere den Anbieter schriftlich, es ist keine Telefonnummer hinterlegt.
Online-ID: 2nerr5l
Referenznummer: 429037
Finde Angebote wie dieses
Hier geht es zu unserem Impressum, den Allgemeinen Geschäftsbedingungen, den Hinweisen zum Datenschutz und nutzungsbasierter Online-Werbung.