
NIX Immobilien
Herr Damian Nix
+ 4 ···
Nr. anzeigenPreise & Kosten
zzgl. Nebenkosten
Kaution
3 Monatskaltmieten
Provision für Mieter
3 Bruttowarmmieten zzgl. MwSt.
Bei Unterzeichnung des Mietvertrages wird vom Erwerber/Mieter an NIX Immobilien, Inh. Damian Nix, die vereinbarte Maklercourtage in Höhe von 3 Bruttowarmmieten zzgl. MwSt. entrichtet.
Warum sehe ich diese Anzeige? – Du siehst diese Anzeige basierend auf Ihrer Navigation auf unserer Website und den Suchkriterien, die du verwendet hast.
Lage
Die Bürofläche befindet sich in Linden (Hessen) in einem etablierten, zentral gelegenen Umfeld mit einer gewachsenen Mischung aus Dienstleistung, Gewerbe und Wohnen. Das sorgt für ein professionelles Umfeld und macht den Standort sowohl für Mitarbeiter als auch für Kunden attraktiv.
Die Nahversorgung ist sehr gut...
Büro-/Praxisfläche
Kategorie
Bürofläche
Baujahr
1988
Bezug
ab sofort
Geschoss
Erdgeschoss
Energie & Heizung
Warum sehe ich diese Anzeige? – Du siehst diese Anzeige basierend auf Ihrer Navigation auf unserer Website und den Suchkriterien, die du verwendet hast.
Weitere Energiedaten
Energieträger
Gas
Details
Objektbeschreibung
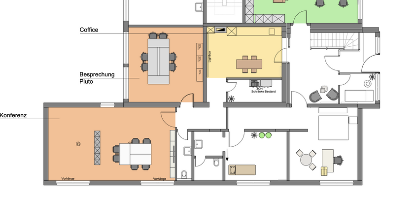
Willkommen an Ihrem neuen Standort in Linden (Hessen): Diese gepflegte und vielseitig nutzbare Bürofläche im Erdgeschoss bietet auf ca. 123 m² ideale Voraussetzungen für Unternehmen, die Wert auf Flexibilität und eine angenehme Arbeitsumgebung legen.
Ob Büro, Praxis, Kanzlei oder Kreativ-Workspace - die Fläche lässt...
Ausstattung
? Ca. 123 m² Büro-/Praxisfläche im Erdgeschoss
? Helle Räume durch großzügige Fensterflächen
? Akustikdecken (schallabsorbierend), teils Schallschutzfenster
? Schallschutztüren (je nach Raumkonzept/Einheit)
? Moderne, gepflegte Bodenbeläge (Parkett | Teppich | Fliesen)
? Einbauküche vorhanden
? Gepflegte...
Preisinformation
3 Stellplätze
Weitere Informationen
Sonstiges
GELDWÄSCHE:
NIX Immobilien, Inh. Damian Nix, ist als Immobilienmakler nach § 2 I Nr. 14, § 10 III und § 11 I, II Geldwäschegesetz (GwG) verpflichtet, beim Zustandekommen einer Geschäftsbeziehung mit ernsthaftem Interesse an der Durchführung des Immobilienkaufvertrages, die Identität des Vertragspartners...
Anbieter der Immobilie
NIX Immobilien
Industriestr. 27, 61381 Friedrichsdorf
Online-ID: 2nerg5e
Referenznummer: E-478
Finde Angebote wie dieses
Hier geht es zu unserem Impressum, den Allgemeinen Geschäftsbedingungen, den Hinweisen zum Datenschutz und nutzungsbasierter Online-Werbung.