

HANNOVER HAUS GmbH
Team Verkauf und Bauberatung HANNOVER HAUS GmbH
051 ···
Nr. anzeigenPreise & Kosten
Provision für Käufer
provisionsfrei
Lage
Auf einem tollen Grundstück mit ruhiger Lage entstehen unsere zwei Doppelhäuser mit großzügigen Grundstücken mit je ca. 402 m² Fläche. Die Planung der Häuser ist speziell auf eine herrliche Ausrichtung ausgelegt, um eine optimale Nutzung des Gartens zu gewährleisten. Diese durchdachte Konzeption bietet nicht nur einen schönen...
Das Haus
Kategorie
Doppelhaushälfte
Energie & Heizung
Warum sehe ich diese Anzeige? – Du siehst diese Anzeige basierend auf Ihrer Navigation auf unserer Website und den Suchkriterien, die du verwendet hast.
Energieausweis: für diesen Gebäudetyp nicht notwendig
Weitere Energiedaten
Haustyp
KfW 40
Heizungsart
Luft-/Wasser-Wärmepumpe
Details
Objektbeschreibung
Herzlich Willkommen in unserem neuen Projekt im schönen Bredenbeck.
Hier entstehen in schöner Lage zwei Doppelhaushälften, die modernes Design mit höchstem Wohnkomfort verbinden.
Inmitten einer charmanten Umgebung bieten diese großzügigen Grundstücke eine erstklassige Lage mit einer herrlichen Ausrichtung und Blick...
Ausstattung
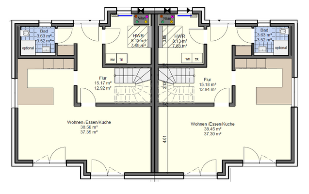
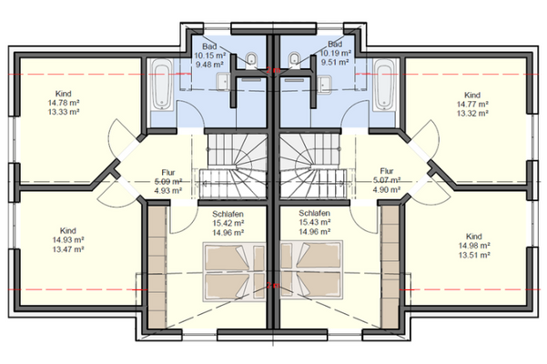
Unsere zwei Doppelhaushälften bestehen aus je ca. 127 m² Grundfläche zzgl. ca. 30 m² Nutzfläche und einer jeweiligen Grundstücksfläche von ca. 402 m² Fläche. Die Architektur der Doppelhäuser besticht durch Ihre Moderne und Offenheit und ist durch den Grundriss für die ganze Familie konzipiert.
Die wichtigsten Merkmale...
Weitere Informationen
Sonstiges
GRUNDSTÜCKSERWERB
Der Grundstückskaufpreis ist bereits im Gesamtpreis eingerechnet. Der Erwerb des Grundstücks erfolgt direkt zwischen Ihnen und der NLG. Wir unterstützen Sie bei den Vorbereitungen und beim gesamten Kaufprozess.
ÜBER UNS
HANNOVER HAUS steht für mehr als 25-jährige Erfahrung...
Anbieter der Immobilie
HANNOVER HAUS GmbH
Hannoversche Str. 88, 30916 Isernhagen

Online-ID: 2ner75y
Finde Angebote wie dieses
Hier geht es zu unserem Impressum, den Allgemeinen Geschäftsbedingungen, den Hinweisen zum Datenschutz und nutzungsbasierter Online-Werbung.