
RE/MAX Living - MDV Consult GmbH
Frau Regina Kletter
004 ···
Nr. anzeigenPreise & Kosten
Provision für Käufer
3,57 % inkl. ges. MwSt. inkl. MwSt.
Lage
Das Grundstück befindet sich in einer der gefragtesten innerstädtischen Lagen Dachaus, geprägt durch gewachsene Strukturen, kurze Wege und eine sehr gute Infrastruktur. Die Umgebung verbindet urbanes Leben mit hoher Wohnqualität und zählt seit Jahren zu den nachgefragtesten Wohngebieten der Stadt.
Die Nähe zur...
Das Haus
Kategorie
Einfamilienhaus
Baujahr
1936
Energie & Heizung
Warum sehe ich diese Anzeige? – Du siehst diese Anzeige basierend auf Ihrer Navigation auf unserer Website und den Suchkriterien, die du verwendet hast.
Energieausweistyp
Bedarfsausweis
Gebäudetyp
Wohngebäude
Baujahr laut Energieausweis
1936
Wesentliche Energieträger
GAS
Gültigkeit
bis 19.11.2029
Effizienzklasse
H
Endenergiebedarf
257,80 kWh/(m²·a)
Weitere Energiedaten
Energieträger
Gas
Details
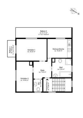
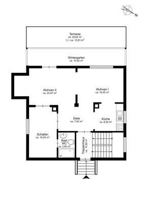
Objektbeschreibung
Diese Immobilie bietet die seltene Gelegenheit, Wohn- oder Bauideen an einem der gefragtesten Standorte Dachaus zu realisieren.
Auf einem ca. 1.066 m² großen Grundstück befindet sich derzeit ein freistehendes Wohnhaus aus dem Jahr 1936. Die Liegenschaft eröffnet vielfältige Perspektiven - sowohl für die...
Ausstattung
- Architektonisch ansprechendes Haus im "Kaffeemühlenhaus"-Stil
- Highlights: Fischgrätparkett, Schwedenofen, Wintergarten, Erker, Terrasse
- Grundstück besteht aus zwei unmittelbar nebeneinanderliegenden Flurstücken
- Bestandsbebauung: freistehendes Wohnhaus (Baujahr 1936)
- Teilweise unbebautes Grundstück...
Weitere Informationen
Sonstiges
Alle Angaben sind freibleibend, unverbindlich, ohne Gewähr und basieren ausschließlich auf Informationen, die uns von unserem Auftraggeber mitgeteilt wurden. Sollte Ihnen die von uns nachgewiesene Immobilie/Grundstück bereits bekannt sein, teilen Sie uns dieses bitte unverzüglich mit. Wir übernehmen keine Gewähr...
Anbieter der Immobilie
Online-ID: 2nepc5r
Referenznummer: 1065-4844-RKL
Finde Angebote wie dieses
Hier geht es zu unserem Impressum, den Allgemeinen Geschäftsbedingungen, den Hinweisen zum Datenschutz und nutzungsbasierter Online-Werbung.