
Neumann ImmoConsult GmbH
004 ···
Nr. anzeigenPreise & Kosten
Kaution
2.730,00
Warum sehe ich diese Anzeige? – Du siehst diese Anzeige basierend auf Ihrer Navigation auf unserer Website und den Suchkriterien, die du verwendet hast.
Lage
Dank der zentralen Lage in der Herrenstraße 13 erreichen Sie Einkaufsmöglichkeiten, Restaurants, öffentliche Verkehrsmittel sowie die Karlsruher Innenstadt in wenigen Gehminuten.
Die Herrenstraße liegt im Herzen von Karlsruhe und bietet eine hervorragende Infrastruktur. Sowohl der Marktplatz als auch der Schlossgarten sind...
Die Wohnung
Bezug
sofort
Wohnanlage
Energie & Heizung
Warum sehe ich diese Anzeige? – Du siehst diese Anzeige basierend auf Ihrer Navigation auf unserer Website und den Suchkriterien, die du verwendet hast.
Weitere Energiedaten
Heizungsart
Zentralheizung
Details
Objektbeschreibung
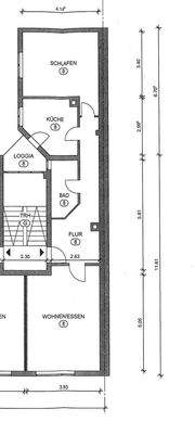
Diese lichtdurchflutete 2-Zimmer-Wohnung im 3. Obergeschoss eines gepflegten Mehrfamilienhauses besticht durch ihre zentrale Lage und eine durchdachte Raumaufteilung. Der neu verlegte Bodenbelag verleiht den Räumen ein modernes, einladendes Ambiente und sorgt für ein rundum frisches Wohngefühl.
Im Zuge der...
Ausstattung
- 2 Zimmer
- Küche
- Bad
- Helle Räume mit durchdachtem Grundriss
- Neuer Bodenbelag
- Saniertes Badezimmer
- Sanierte Elektro und Sanitärleitungen
- Zentrale Stadtlage
Weitere Informationen
Sonstiges
Bei weiterem Interesse laden wir Sie gerne zu einer persönlichen Besichtigung vor Ort ein. Bitte legen Sie uns dazu eine aktuelle Selbstauskunft vor.
Stichworte
Anzahl der Schlafzimmer: 1, Anzahl der Badezimmer: 1, Anzahl Balkone: 1
Anbieter der Immobilie
Online-ID: 2nep55w
Referenznummer: 787
Finde Angebote wie dieses
Weitere Immobilien
Hier geht es zu unserem Impressum, den Allgemeinen Geschäftsbedingungen, den Hinweisen zum Datenschutz und nutzungsbasierter Online-Werbung.