
Evernest GmbH
Norbert Schultek
+49 ···
Nr. anzeigenPreise & Kosten
Provision für Käufer
5.95 inkl. MwSt.
Bei Abschluss eines notariellen Kaufvertrages ist eine Käuferprovision vom Käufer in Höhe von 5.95 % inkl. MwSt. aus dem Kaufpreis fällig.
Lage
Mainz, die Hauptstadt von Rheinland-Pfalz, liegt malerisch am Rhein gegenüber von Wiesbaden und hat rund 220.000 Einwohner. Die Stadt ist ein wichtiges wirtschaftliches und kulturelles Zentrum der Rhein-Main-Region, bekannt für ihre lange Geschichte und als Heimat von Johannes Gutenberg, dem Erfinder des Buchdrucks. Neben dem...
Das Haus
Baujahr
1990
Energie & Heizung
Warum sehe ich diese Anzeige? – Du siehst diese Anzeige basierend auf Ihrer Navigation auf unserer Website und den Suchkriterien, die du verwendet hast.
Energieausweistyp
Verbrauchsausweis
Gebäudetyp
Wohngebäude
Effizienzklasse
E
Endenergieverbrauch
137,05 kWh/(m²·a)
Weitere Energiedaten
Energieträger
Gas
Details
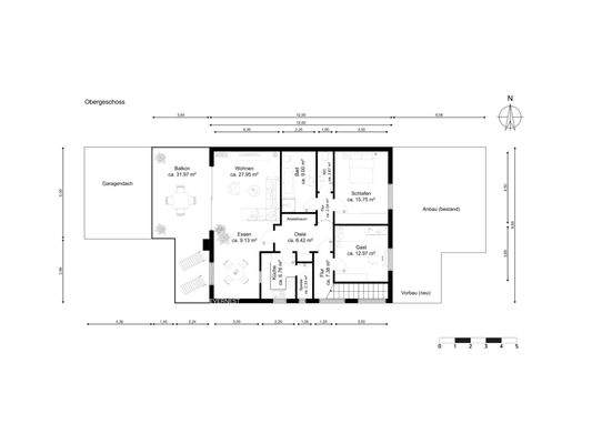
Objektbeschreibung
Das im Jahr 1990 erbaute Wohn- und Geschäftshaus befindet sich auf einem ca. 930 m² großen Grundstück und erstreckt sich über zwei Etagen.
Die Immobilie eignet sich besonders für kleine und mittelständische Unternehmen, die Wohnen und Gewerbe in einem Objekt kombinieren möchten. Zulässig sind alle Betriebe, die im...
Ausstattung
Die Immobilie überzeugt durch eine hochwertige und vielseitige Ausstattung, die sowohl Wohnkomfort als auch flexible Nutzungsmöglichkeiten bietet:
? Großzügiges Tageslichtbad mit Badewanne, separater Dusche und komfortablem Doppelwaschbecken
? Separates Gäste-WC für zusätzlichen Komfort
? Stilvoller Holzofenkamin für...
Weitere Informationen
Stichworte
Garage vorhanden, Nutzfläche: 90,00 m², Anzahl der Badezimmer: 2, Anzahl der separaten WCs: 1, Anzahl Terrassen: 1, 2 Etagen
Anbieter der Immobilie
Online-ID: 2nen65l
Referenznummer: L-6J3F36X
Finde Angebote wie dieses
Hier geht es zu unserem Impressum, den Allgemeinen Geschäftsbedingungen, den Hinweisen zum Datenschutz und nutzungsbasierter Online-Werbung.