
ohne-makler.net - Immobilien selbst vermarkten
Privat vom Eigentümer
Kontaktiere den Anbieter schriftlich, es ist keine Telefonnummer hinterlegt.
Preise & Kosten
zzgl. Nebenkosten
Warum sehe ich diese Anzeige? – Du siehst diese Anzeige basierend auf Ihrer Navigation auf unserer Website und den Suchkriterien, die du verwendet hast.
Lage
Eißendorf - Die grüne Seite Harburgs
Natur & Freizeit
Wander- und Radwege im Naherholungsgebiet der Harburger Berge oder Spaziergänge an der Außenmühle liegen direkt vor Ihrer Haustür.
Infrastruktur
Alle Geschäfte des täglichen Bedarfs, wie Supermärkte, Apotheken und Ärzte befinden sich im direkten...
Die Wohnung
Kategorie
Maisonette
Bezug
nach Absprache
Wohnanlage
Energie & Heizung
Warum sehe ich diese Anzeige? – Du siehst diese Anzeige basierend auf Ihrer Navigation auf unserer Website und den Suchkriterien, die du verwendet hast.
Energieausweistyp
Bedarfsausweis
Gebäudetyp
Wohngebäude
Effizienzklasse
A+
Endenergiebedarf
16,00 kWh/(m²·a)
Weitere Energiedaten
Heizungsart
Fußbodenheizung
Details
Objektbeschreibung
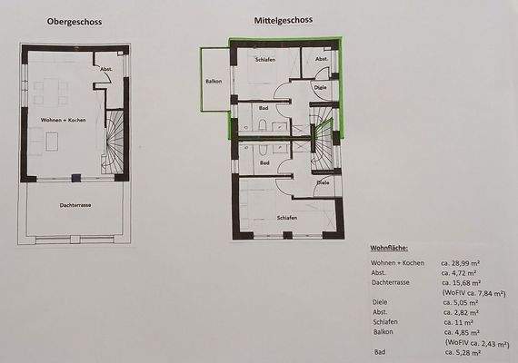
Die hier angebotene 2-Zimmer-Maisonettwohnung mit ca. 68 m² befindet sich in einem 2-Parteien-Objekt mit separatem Eingang.
Das frei geplante Architektenhaus besticht durch seine moderne Architektur und einen offenen Grundriss.
Das Objekt befindet sich einer ruhigen Sackgassenlage mit Süd-West-Ausrichtung.
Der Neubau...
Ausstattung
Balkon, Dachterrasse, Einbauküche, Fliesen
Bemerkungen:
Allgemein:
-3-fach verglaste Kunststofffenster mit elektrischen Außenrollläden
-Waschmaschinen- und Trockneranschluss in der Wohnung in einem Abstellraum vorhanden
-Offener Wohn- und Essbereich mit Küche
-Designbelag Rigid-Vinyl in Dielenoptik Eiche...
Weitere Informationen
Sonstiges
Heizungsart: Fußbodenheizung
Weitere Angaben
Verfügbar ab: ca. 01.04.2026 oder nach Vereinbarung
Objektzustand: Erstbezug
Nettokaltmiete: 1.750€
Nebenkostenvorauszahlung: ca. 250€
Aufgrund des Erstbezugs können die Nebenkosten noch nicht genau angegeben werden.
Kaution: 3...
Anbieter der Immobilie
ohne-makler.net - Immobilien selbst vermarkten
Humboldtstr. 25 A, 21509 Glinde
Privat vom Eigentümer
Dein Ansprechpartner
Kontaktiere den Anbieter schriftlich, es ist keine Telefonnummer hinterlegt.
Online-ID: 2nemc5v
Referenznummer: 436520
Finde Angebote wie dieses
Hier geht es zu unserem Impressum, den Allgemeinen Geschäftsbedingungen, den Hinweisen zum Datenschutz und nutzungsbasierter Online-Werbung.