
Immobilien Gesellschaft mbH der Frankfurter Volksbank Rhein/Main
Frau Jing Li
004 ···
Nr. anzeigenPreise & Kosten
Provision für Käufer
3,00% inkl. MwSt.
Wir haben einen provisionspflichtigen Maklervertrag mit dem Verkäufer in gleicher Höhe abgeschlossen.
Lage
Die Stadt Raunheim liegt im südhessischen Kreis Groß-Gerau im Rhein-Main-Gebiet etwa 20 km südwestlich von Frankfurt am Südufer des Mains. Sie grenzt im Nordosten an die Stadt Kelsterbach, im Osten direkt an den Frankfurter Flughafen, im Süden an die Stadt Rüsselsheim am Main sowie im Nordwesten an die Städte Flörsheim am...
Das Haus
Kategorie
Doppelhaushälfte
Baujahr
1990
Energie & Heizung
Warum sehe ich diese Anzeige? – Du siehst diese Anzeige basierend auf Ihrer Navigation auf unserer Website und den Suchkriterien, die du verwendet hast.
Energieausweistyp
Bedarfsausweis
Gebäudetyp
Wohngebäude
Baujahr laut Energieausweis
1990
Wesentliche Energieträger
ELECTRICITY
Gültigkeit
bis 08.09.2035
Effizienzklasse
D
Endenergiebedarf
125,40 kWh/(m²·a)
Details
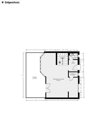
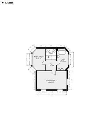
Objektbeschreibung
Diese gepflegte Doppelhaushälfte aus dem Baujahr 1990 befindet sich in einer verkehrsgünstigen und zentralen Lage von Raunheim. Das Haus ist auf WEG-Basis geteilt und wurde in den Jahren 2015 bis 2019 umfassend renoviert. Der Keller wurde im Jahr 2025 frisch saniert und präsentiert sich in einwandfreiem Zustand.
Im...
Weitere Informationen
Sonstiges
Gerne stehen wir Ihnen für ein Beratungs- und Besichtigungstermin zur Verfügung.
Sie möchten selbst eine Immobilie verkaufen?
Wir ermitteln einen seriösen und marktgerechten Wert Ihrer Immobilie. Mit einem individuell für Sie abgestimmten Vermarktungsplan optimieren wir die Verkaufschancen. Als...
Anbieter der Immobilie
Immobilien Gesellschaft mbH der Frankfurter Volksbank Rhein/Main
Seligenstädter Str. 52, 63179 Obertshausen
Online-ID: 2nekg5b
Referenznummer: 11783
Finde Angebote wie dieses
Hier geht es zu unserem Impressum, den Allgemeinen Geschäftsbedingungen, den Hinweisen zum Datenschutz und nutzungsbasierter Online-Werbung.