

D&V Immobilien GmbH & Co. KG
Herr Michael Dethlefs
048 ···
Nr. anzeigenPreise & Kosten
Provision für Käufer
3,57 % inkl. MwSt.
Lage
Das Immobilienensemble ist zentral in Heide gelegen.
Einkaufsmöglichkeiten sind fußläufig zu erreichen. Heide ist die Kreisstadt Dithmarschens, hat etwa 22.000 Einwohner und verfügt über viele Einkaufsmöglichkeiten, Museen, Musikschulen und eine Volkshochschule sowie eine sehr gute ärztliche Versorgung.
Weiterhin gibt...
Das Haus
Kategorie
Mehrfamilienhaus
Baujahr
2000
Bezug
nach Vereinbarung
Derzeitige Nutzung
vermietet
Energie & Heizung
Warum sehe ich diese Anzeige? – Du siehst diese Anzeige basierend auf Ihrer Navigation auf unserer Website und den Suchkriterien, die du verwendet hast.
Energieausweistyp
Verbrauchsausweis
Gebäudetyp
Wohngebäude
Baujahr laut Energieausweis
2000
Wesentliche Energieträger
GAS
Gültigkeit
bis 28.01.2036
Effizienzklasse
D
Endenergieverbrauch
100,70 kWh/(m²·a)
Weitere Energiedaten
Haustyp
Massivhaus
Energieträger
Gas
Heizungsart
Etagenheizung
Details
Objektbeschreibung
Auf einem 995 m² großen Grundstück vereint dieses Anlageensemble ein klassisches Mehrfamilienhaus, Baujahr ca. 1900 im straßenseitigen Bereich und ein modernes Einfamilienhaus samt vermieteter Einliegerwohnung, Baujahr 2000, im ruhigeren Hinterhof.
Die Kombination aus Vermietung und Eigennutzung bietet vielseitige...
Ausstattung
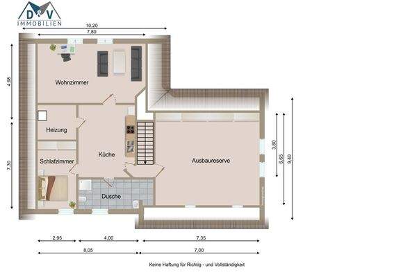
- Wohn- und Renditeobjekt
- sechs Wohneinheiten
- separate Zähler für Gas, Strom und Wasser im Vorderhaus
- Ausbaureserve
- Einbauküchen
- pflegeleichter Garten
- vier Garagen
Weitere Informationen
Sonstiges
Der Käufer zahlt eine Vermittlungscourtage in Höhe von 3,57 % des Kaufpreises inklusive der gesetzlichen Mehrwertsteuer. Die Courtage ist fällig bei Abschluss des notariellen Kaufvertrages.
Alle vorstehenden Angaben beruhen auf Informationen des Eigentümers. Diese wurden durch die D&V Immobilien GmbH...
Anbieter der Immobilie

Online-ID: 2nejg5u
Referenznummer: 493
Finde Angebote wie dieses
Hier geht es zu unserem Impressum, den Allgemeinen Geschäftsbedingungen, den Hinweisen zum Datenschutz und nutzungsbasierter Online-Werbung.