
Matador Immobilien GmbH
Herr Alexander Nirschl
004 ···
Nr. anzeigenPreise & Kosten
Provision für Käufer
3,57 % inkl. MwSt.
Lage
Die Wohnung befindet sich in ruhiger, naturnaher Lage in einem gepflegten Mehrparteienhaus (Haus 1) am Rande einer gewachsenen Ferien- und Wohnsiedlung. Umgeben von Wiesen, Wäldern und sanften Hügeln genießen Sie hier eine entspannte Atmosphäre mit hohem Freizeitwert - ganz gleich, ob zur Eigennutzung oder als...
Die Wohnung
Bezug
01.08.2026
Wohnanlage
Energie & Heizung
Warum sehe ich diese Anzeige? – Du siehst diese Anzeige basierend auf Ihrer Navigation auf unserer Website und den Suchkriterien, die du verwendet hast.
Energieausweistyp
Verbrauchsausweis
Gebäudetyp
Wohngebäude
Baujahr laut Energieausweis
1993
Wesentliche Energieträger
OEL
Gültigkeit
bis 02.08.2028
Effizienzklasse
E
Endenergieverbrauch
132,30 kWh/(m²·a)
Weitere Energiedaten
Energieträger
Öl
Heizungsart
Zentralheizung
Details
Objektbeschreibung
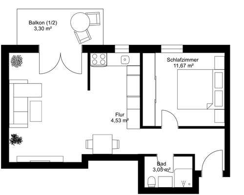
Diese charmante 2-Zimmer-Wohnung im 1. Obergeschoss eines gepflegten Mehrparteienhauses steht ab sofort zum Verkauf. Auf rund 50 m² Wohnfläche überzeugt sie mit einer modernen Ausstattung, einem durchdachten Grundriss und einem einladenden Ambiente - ideal für Eigennutzer ebenso wie für Kapitalanleger.
Die Lage besticht...
Ausstattung
Diese ca. 50,32?m² große Wohnung im 1. Obergeschoss überzeugt durch eine durchdachte Raumaufteilung und eine sonnige Lage mit Blick ins Grüne. Der nach Osten ausgerichtete Balkon bietet einen herrlichen Weitblick - perfekt zum Entspannen.
Entspannen, wohlfühlen und den Alltag mit Blick ins Grüne hinter sich...
Preisinformation
1 Tiefgaragenstellplatz, Kaufpreis: 10.000,00 EUR
Weitere Informationen
Sonstiges
Stellplatz: Fester Tiefgaragenstellplatz - Kaufpreis: 10.000 €
Möblierung: Im Kaufpreis enthalten
Renovierung: Die Wohnung wurde im März/April 2024 umfassend renoviert
Besonderheiten der Wohnanlage: Hallenbad und Sauna zur gemeinschaftlichen Nutzung
Dauerwohnsitz: Erlaubt!
Ferienvermietung...
Anbieter der Immobilie
Online-ID: 2nehg5d
Referenznummer: 26-11
Finde Angebote wie dieses
Hier geht es zu unserem Impressum, den Allgemeinen Geschäftsbedingungen, den Hinweisen zum Datenschutz und nutzungsbasierter Online-Werbung.