

wohnart - Immobilien + Architektur
Herr Steven Buhlmann
039 ···
Nr. anzeigenPreise & Kosten
Provision für Käufer
Die vom Erwerber zu zahlende Maklerprovision beträgt 3,57% einschließlich MwSt. des Kaufpreises samt dem vom Käufer übernommenen sonstigen Leistungen, dem Verkäufer vorbehaltenen Nutzungen sowie dem Zubehör und einem etwa mitveräußerten Inventar.
Lage
Heudeber ist ein ruhiger und familienfreundlicher Ortsteil der Stadt Wernigerode im Landkreis Harz. Die Umgebung ist geprägt von einer gewachsenen Wohnstruktur, viel Grün und einer angenehmen Nachbarschaft - ideal für Familien, die naturnah wohnen und dennoch gut angebunden sein möchten.
Die Nähe zum Harz bietet...
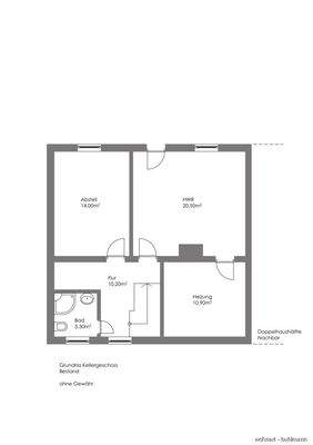
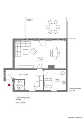
Das Haus
Kategorie
Doppelhaushälfte
Baujahr
1989
Energie & Heizung
Warum sehe ich diese Anzeige? – Du siehst diese Anzeige basierend auf Ihrer Navigation auf unserer Website und den Suchkriterien, die du verwendet hast.
Weitere Energiedaten
Energieträger
Gas
Heizungsart
Zentralheizung
Details
Objektbeschreibung
Diese gepflegte Doppelhaushälfte aus dem Baujahr 1989 bietet mit ca. 135m² Wohnfläche und einem sonnigen Grundstück den idealen Raum für eine Familie mit Kindern. Die Immobilie wurde über die Jahre regelmäßig modernisiert und präsentiert sich heute in einem guten, einzugsfertigen Zustand.
Im Erdgeschoss empfängt Sie...
Preisinformation
2 Carportplätze
2 Stellplätze
Weitere Informationen
Sonstiges
Unter folgendem Link haben Sie die Möglichkeit, diese Immobilie in einem 360°-Rundgang virtuell zu begehen. Wir wünschen Ihnen viel Spaß dabei und hoffen, mit diesem Objekt Ihr Interesse geweckt zu haben.
https://tour.ogulo.com/kLxm
Stichworte
Carport vorhanden, Stellplatz vorhanden, Nutzfläche...
Anbieter der Immobilie
wohnart - Immobilien + Architektur
Gustav-Petri-Straße 4, 38855 Wernigrode

Online-ID: 2negf5b
Referenznummer: 2026-03
Finde Angebote wie dieses
Hier geht es zu unserem Impressum, den Allgemeinen Geschäftsbedingungen, den Hinweisen zum Datenschutz und nutzungsbasierter Online-Werbung.