
Evernest GmbH
Koray Tuz
+49 ···
Nr. anzeigenPreise & Kosten
Provision für Käufer
Provisionsfrei für den Käufer
Lage
Die Immobilie befindet sich in einem gewachsenen und angenehm ruhigen Wohnumfeld, das durch eine harmonische Mischung aus Einfamilien- und Doppelhäusern geprägt ist. Die Nachbarschaft zeichnet sich durch eine gepflegte Bebauung sowie eine familienfreundliche Struktur aus und bietet ein ausgewogenes Verhältnis zwischen...
Das Haus
Kategorie
Doppelhaushälfte
Baujahr
2024
Energie & Heizung
Warum sehe ich diese Anzeige? – Du siehst diese Anzeige basierend auf Ihrer Navigation auf unserer Website und den Suchkriterien, die du verwendet hast.
Energieausweistyp
Bedarfsausweis
Gebäudetyp
Wohngebäude
Effizienzklasse
A+
Endenergiebedarf
17,00 kWh/(m²·a)
Weitere Energiedaten
Energieträger
Elektro
Details
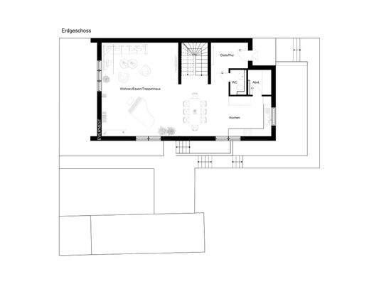
Objektbeschreibung
Diese moderne Neubau-Doppelhaushälfte überzeugt durch eine klare architektonische Linie, eine durchdachte Raumaufteilung und eine zeitgemäße technische Ausstattung. Mit einer Gesamtwohnfläche von ca. 236,84 m² bietet die Immobilie großzügige Platzverhältnisse und vielseitige Nutzungsmöglichkeiten - ideal für Familien...
Ausstattung
- KFW-55
- Großzügig
- Lichtdurchflutet
- Neubau/Erstbezug
- Einliegerwohnung mit separatem Zugang
- Energetisch hochwertig
- Wärmepumpe
- Fußbodenheizung
- elektrische Jalousien
- Garage und Außenstellplatz
Weitere Informationen
Stichworte
Parkhaus vorhanden, Nutzfläche: 24,99 m², Anzahl der Schlafzimmer: 4, Anzahl der Badezimmer: 2, Anzahl der separaten WCs: 1, Anzahl Terrassen: 1, 3 Etagen
Anbieter der Immobilie
Online-ID: 2neg35n
Referenznummer: L-38EZRHH
Finde Angebote wie dieses
Hier geht es zu unserem Impressum, den Allgemeinen Geschäftsbedingungen, den Hinweisen zum Datenschutz und nutzungsbasierter Online-Werbung.